Holzmann ED1500KDIG handleiding
Handleiding
Je bekijkt pagina 95 van 215

MONTAGE
HOLZMANN MASCHINEN GmbH www.holzmann-maschinen.at 95
ED1000KDIG | ED1500KDIG
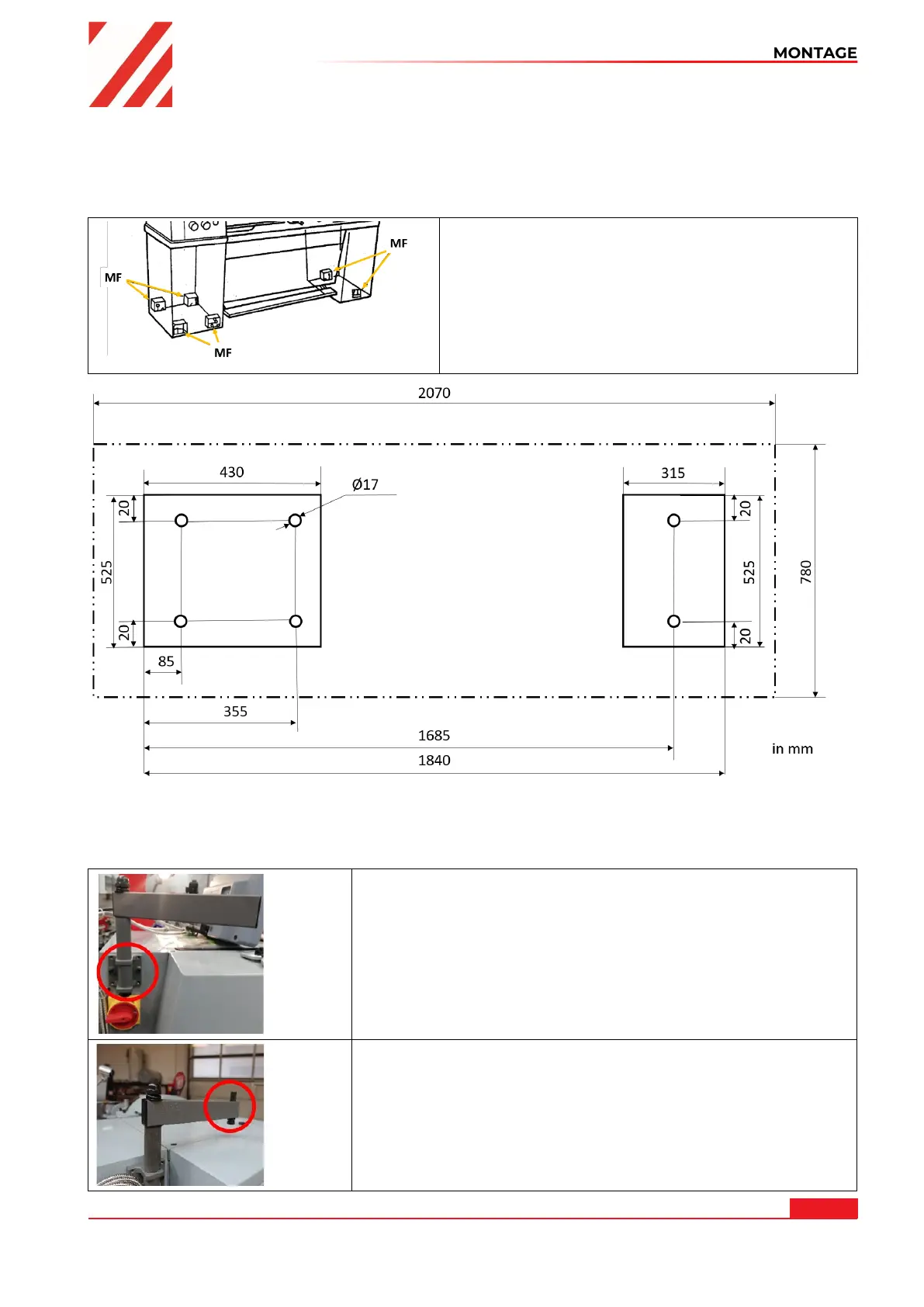
Utiliser le montage ancré pour obtenir un assemblage rigide avec la base. Cela permet de réduire
le potentiel de vibrations. Le montage ancré est toujours judicieux lorsque la lame de coupe ou
l'outil de coupe est utilisé avec un alliage HM et/ou de grandes pièces jusqu'à la capacité maximale
de la machine doivent être usinées.
1. Installer la machine sur les vis d'ancrage (MF)
avec disque de réglage (3).
2. Ensuite, aligner la machine et serrer les vis (1).
3. Contrôler à nouveau l'alignement de la
machine après avoir serré les contre-écrous (2).
4. Répéter le processus de nivellement si cela
s'avère nécessaire
27.1.6 Assemblage
La machine est livrée pré-assemblée, les accessoires qui ont été retirés pour le transport doivent
être assemblés selon les instructions suivantes et le raccordement électrique doit être établi.
Montage DRO
Installer le support de l'affichage numérique de la position
(DRO) au-dessus de l'interrupteur principal avec les 2 vis
prévues à cet effet.
Fixer le support sur la traverse.
Bekijk gratis de handleiding van Holzmann ED1500KDIG, stel vragen en lees de antwoorden op veelvoorkomende problemen, of gebruik onze assistent om sneller informatie in de handleiding te vinden of uitleg te krijgen over specifieke functies.
Productinformatie
| Merk | Holzmann |
| Model | ED1500KDIG |
| Categorie | Niet gecategoriseerd |
| Taal | Nederlands |
| Grootte | 66413 MB |







