Handleiding
Je bekijkt pagina 12 van 40

© 2017 Pentair Equipment Protection
89116684
- 12 -
INSTALLATION INSTRUCTIONS
1. Inspect the air conditioner and verify correct functionality before mounting the air conditioner. See
HANDLING AND TESTING THE AIR CONDITIONER on page 3.
2. Using the mounting gasket kit provided with the unit, install gaskets to the air conditioner, see
Figure 1.
3. Mount air conditioner on enclosure taking care not to damage the mounting gasket. The
mounting gasket is the seal between the air conditioner and the enclosure. Avoid dragging the air
conditioner on the enclosure with the mounting gasket attached as this could cause rips or tears
in the gasket and risk losing the water tight seal.
4. Allow unit to remain upright for a minimum of five (5) minutes before starting. CAUTION! Air
conditioner must be in upright position during operation.
5. Refer to the nameplate for electrical requirements. Wire the unit to a properly grounded power
supply. For 3 phase units, once power is applied, verify that phase monitor light is illuminated
which indicates correct electrical phasing. Electrical circuit should be fused with slow blow or
HACR circuit breaker.
6. Some air conditioners require a remote mounted thermostat. Wire the thermostat outputs to the
appropriate terminals on the 24 VAC terminal strip by noting the locations on the correct wiring
diagram.
7. Set thermostat for required cabinet temperature. Refer to Sequence of Operation on page 4 for
thermostat adjustment and operation.
28100013
89059115
Surface Mount Partial Recess Mount
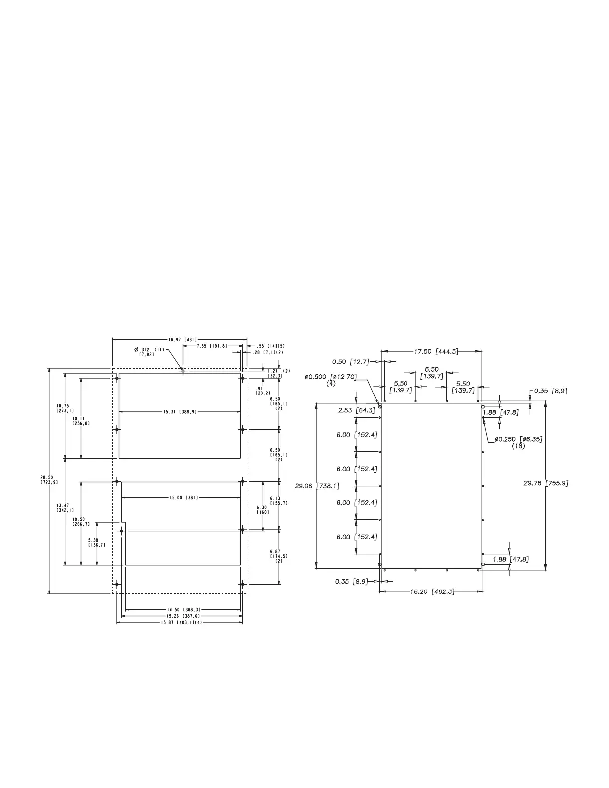
Figure 1
Cut-out Drawing
Bekijk gratis de handleiding van Hoffman G28, stel vragen en lees de antwoorden op veelvoorkomende problemen, of gebruik onze assistent om sneller informatie in de handleiding te vinden of uitleg te krijgen over specifieke functies.
Productinformatie
Merk | Hoffman |
Model | G28 |
Categorie | Heater |
Taal | Nederlands |
Grootte | 4262 MB |
Caratteristiche Prodotto
Soort bediening | Knoppen |
Kleur van het product | Grijs |
Gewicht | 38101 g |
Breedte | 431 mm |
Diepte | 256.5 mm |