Handleiding
Je bekijkt pagina 20 van 32

19
• Hold the door glass pane by the lower edge; slightly lift it so that it is no longer attached to the support; and remove
it.
• To remove the third glass pane (only with some models), lift and remove it. Also remove the rubber seals on the
glass pane.
To replace the glass pane, observe the reverse order. The markings (semicircle) on the door and the glass pane
should overlap.
REMOVING AND INSERTING THE OVEN DOOR GLASS PANE (depending on the model)
Screw out the screws on the door left and right sides and pull out the upper lath. You can pull out the glass pane of
door now.
Provide these steps in reverse order at returning the glass pane back.
Repair or any warranty claim resulting from incorrect connection or use of the appliance shall not be covered
by the warranty. In this case, the user will cover the cost of repair.
INSTALLATION AND CONNECTION INSTRUCTIONS
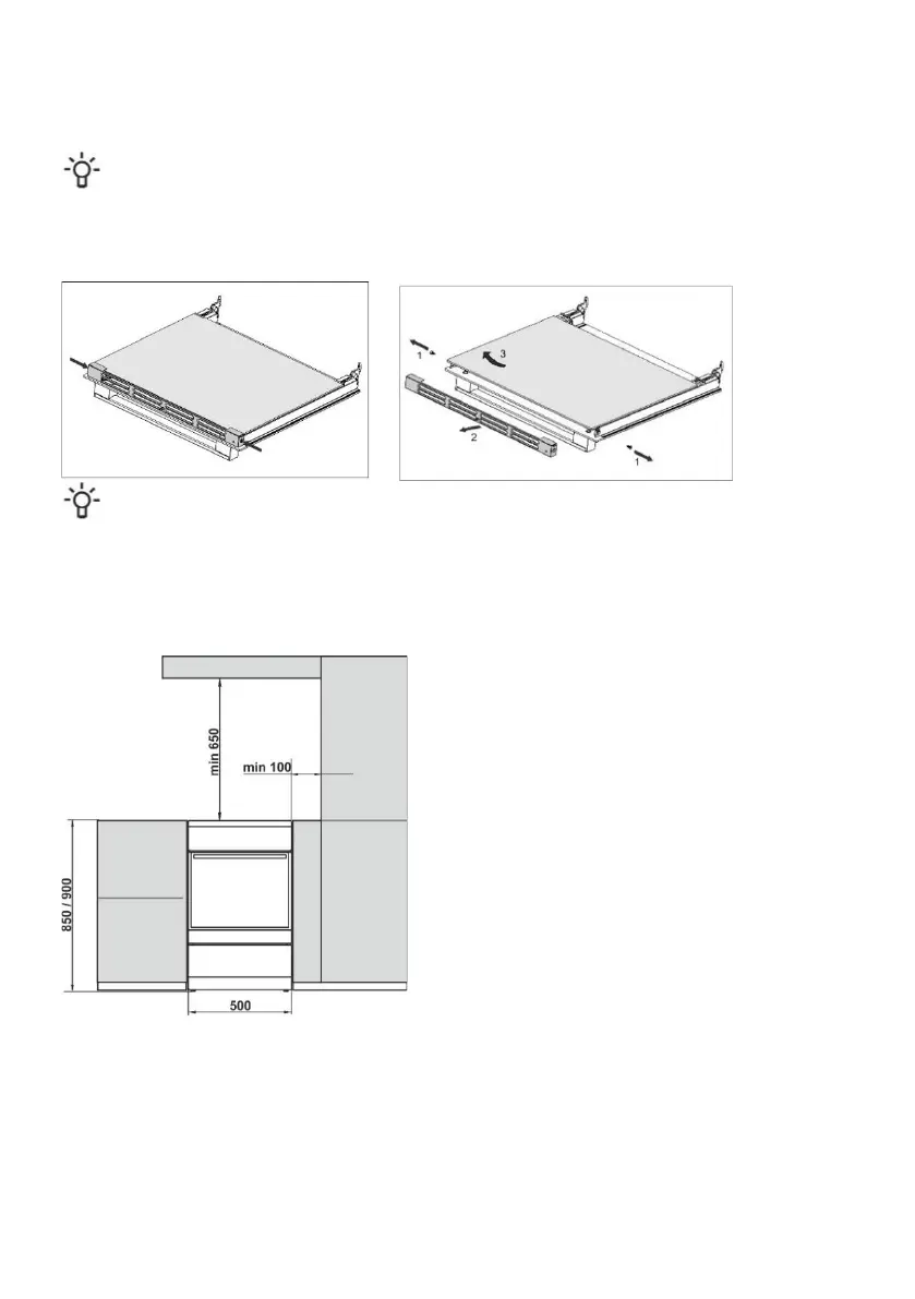
APPLIANCE PLACEMENT (mm) (depending on the model)
The walls or furniture adjacent to the appliance (floor, rear
kitchen wall, side walls) have to be temperature-resistant to at
least 90°C.
Bekijk gratis de handleiding van Hisense HKS5D71XMPF, stel vragen en lees de antwoorden op veelvoorkomende problemen, of gebruik onze assistent om sneller informatie in de handleiding te vinden of uitleg te krijgen over specifieke functies.
Productinformatie
| Merk | Hisense |
| Model | HKS5D71XMPF |
| Categorie | Fornuis |
| Taal | Nederlands |
| Grootte | 4214 MB |







