Handleiding
Je bekijkt pagina 10 van 48

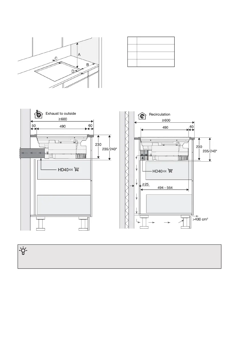
3.2 Preparations for installation
Free space around the appliance
≥ 500 mmA
≥ 40 mmB
≥ 40 mmC
≥ 50 mmD
Installation options
Exhaust to outside
Recirculation
*Flush-mount
INFORMATION!
If the option of recirculation through the back wall of the kitchen cabinet is used, any external
walls must be insulated.
10
Bekijk gratis de handleiding van Hisense HEH8432BSCWF, stel vragen en lees de antwoorden op veelvoorkomende problemen, of gebruik onze assistent om sneller informatie in de handleiding te vinden of uitleg te krijgen over specifieke functies.
Productinformatie
Merk | Hisense |
Model | HEH8432BSCWF |
Categorie | Fornuis |
Taal | Nederlands |
Grootte | 3960 MB |