Hendi 221624 handleiding
Handleiding
Je bekijkt pagina 64 van 148

64
GR
Αντιμετώπιση προβλημάτων
Εάν η συσκευή δεν λειτουργεί σωστά, ελέγξτε τον πα-
ρακάτω πίνακα για τη λύση. Εάν εξακολουθείτε να μη
μπορείτε να επιλύσετε το πρόβλημα, επικοινωνήστε
με τον προμηθευτή/κέντρο σέρβις.
Προβλήματα Πιθανή αιτία Πιθανή λύση
Η συσκευή δεν ανά-
βει.
- Το βύσμα δεν είναι σωστά συνδε-
δεμένο στην πρίζα.
- Ο διακόπτης τροφοδοσίας δεν
έχει ρυθμιστεί στη θέση I ή II.
- Ελέγξτε το βύσμα και βεβαιωθείτε ότι είναι
σωστά συνδεδεμένο.
- Ρυθμίστε το διακόπτη τροφοδοσίας (7) στη
θέση I ή II.
Η συσκευή σταματά να
λειτουργεί.
- Ο εσωτερικός θερμικός περι-
οριστής ενεργοποιείται για να
αποφευχθεί η υπερθέρμανση του
κινητήρα
Γυρίστε το διακόπτη ρεύματος στη θέση «0»
και αποσυνδέστε τη συσκευή. Αφήστε τη συ-
σκευή να κρυώσει εντελώς για περίπου 20 ~
30 λεπτά πριν τη βάλετε ξανά σε λειτουργία.
Τεχνικές προδιαγραφές
Αριθ. στοιχείου 221600 221617 221624 221631 221648 221655
Τάση και συχνότητα
λειτουργίας
220- 240V~ 50Hz
Ονομαστική ισχύς
εισόδου
400W
Χωρητικότητα κυ
-
πέλλου
0,75 ~ 0,95L
Κατηγορία προστασίας Κατηγορία I
Επίπεδο θορύβου < 75 dB (A)
Ταχύτητα (σαλ) Ρύθμιση I : 15,000 / Ρύθμιση II : 19,000
Χρώμα Μαύρο Λευκό Καραμελί Κίτρινο Κόκκινο Μπλε
Διαστάσει 170x196x(Υ)490mm
Καθαρό βάρος 4,9kg
Σημείωση: Οι τεχνικές προδιαγραφές μπορούν να αλλάξουν χωρίς προειδοποίηση.
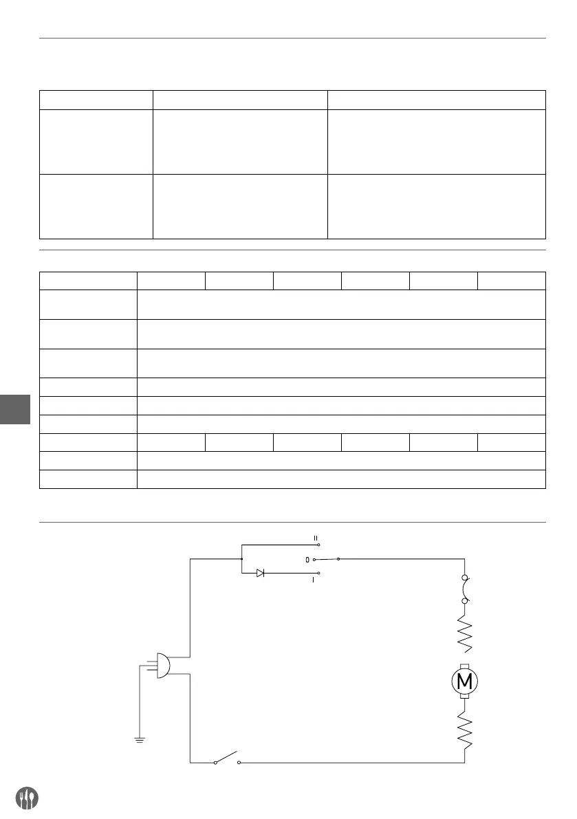
Ηλεκτρικό διάγραμμα
Μικρο-διακόπτης
Δίοδος
Διακόπτης
220- 240V~ 50Hz
Bekijk gratis de handleiding van Hendi 221624, stel vragen en lees de antwoorden op veelvoorkomende problemen, of gebruik onze assistent om sneller informatie in de handleiding te vinden of uitleg te krijgen over specifieke functies.
Productinformatie
| Merk | Hendi |
| Model | 221624 |
| Categorie | Niet gecategoriseerd |
| Taal | Nederlands |
| Grootte | 15620 MB |







