Handleiding
Je bekijkt pagina 37 van 65

www.heinner.com
36
4. ИНСТАЛИРАНЕ
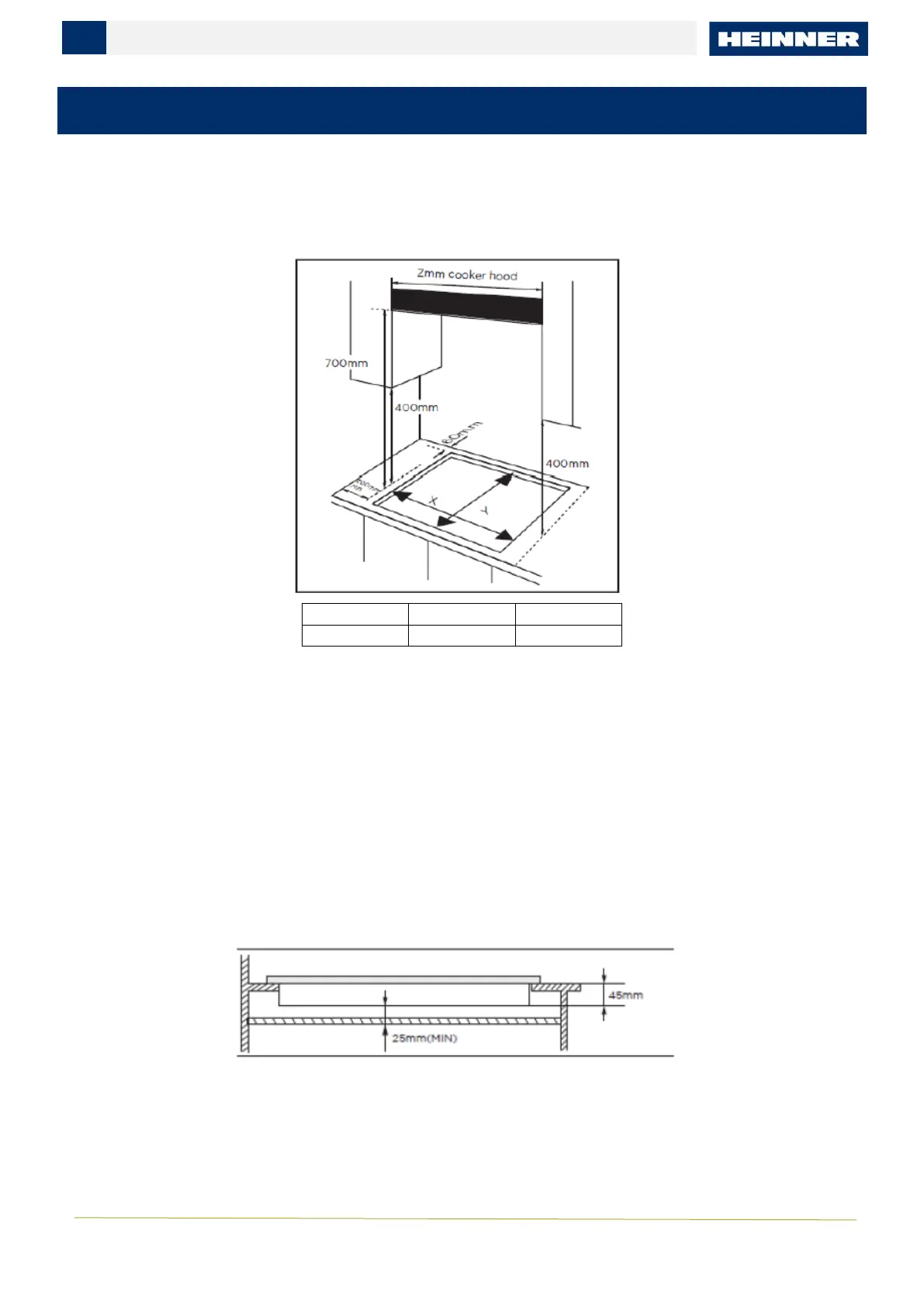
Необходими разстояния, когато готварската печка се монтира с абсорбатор отгоре:
Този уред се монтира в кухненски модул или в кухненски плот от 600 мм, при условие да бъдат
спазени следните минимални разстояния.
X
Y
Z
262 mm
480 mm
300 mm
• Ръбовете на готварската печка трябва да са на минимално разстояние 60 мм от странична стена
или от задната стена.
• Разстояние от 700 мм между най-високата точка на повърхността на готварската печка
(включително горелките) и долната страна на всяка хоризонтална повърхност, намираща се
директно над нея.
• Разстояние от 400 мм между повърхностите на готварската печка, при условие че долната страна
на хоризонталната повърхност е срещу външния ръб на готварската печка. Ако долната страна на
хоризонталната повърхност е по-ниска от 400 мм, тя трябва да се намира на най-малко 50 мм от
външните ръбове на готварската печка.
• Разстояние от 50 мм около уреда и между повърхността на готварската печка и всякакви
запалими материали.
• Трябва да оставите разстояние най-малко 25 мм и не повече от 74 мм между долната страна на
уреда и всяка повърхност, която се намира под нея.
- За да може да се инсталира готварската печка над фурна, последната трябва да бъде оборудвана
със система за принудителна вентилация.
- Проверете размерите на фурната в наръчника за инсталиране.
- Размерът на изреза трябва да съответства на указанията.
Bekijk gratis de handleiding van Heinner HBH-M302FGBK, stel vragen en lees de antwoorden op veelvoorkomende problemen, of gebruik onze assistent om sneller informatie in de handleiding te vinden of uitleg te krijgen over specifieke functies.
Productinformatie
| Merk | Heinner |
| Model | HBH-M302FGBK |
| Categorie | Fornuis |
| Taal | Nederlands |
| Grootte | 13294 MB |







