Haws 1920 handleiding
Handleiding
Je bekijkt pagina 4 van 11

PARTS BREAKDOWN
APPROVED
DRAWN
PART NUMBER
SCALE:
SHEET OF
REVISION
DRAWING TYPE: SIZE: A
BYECN NO.
PAGE
DATE
DATE
ECN:
REVISED PER
CHKD
Haws Corporation - All Rights Reserved
HAWS and other trademarks used in these materials are the exclusive property of Haws Corporation.
C
R
MODEL(S)
1455 KLEPPE LANE
SPARKS, NEVADA 89431
(775) 359-4712 FAX (775) 359-7424
E-MAIL: HAWS@HAWSCO.COM
WEBSITE: WWW.HAWSCO.COM
THIS DOCUMENT IS TRUE AND CORRECT AT TIME OF PUBLICATION. CONTINUED PRODUCT IMPROVEMENTS
MAKE SPECIFICATIONS AND MEASUREMENTS SUBJECT TO CHANGE WITHOUT NOTICE.
WHEN ORDERING PARTS PLEASE SPECIFY MODEL NUMBER.
MJ
06/08/16
10
0510000490
1920/1920HPS/1920W
1:14
11
FV
10/11/21
5081
BJM
4 OF 11
PARTS BREAKDOWN
5744
2021
FV
2
1
2
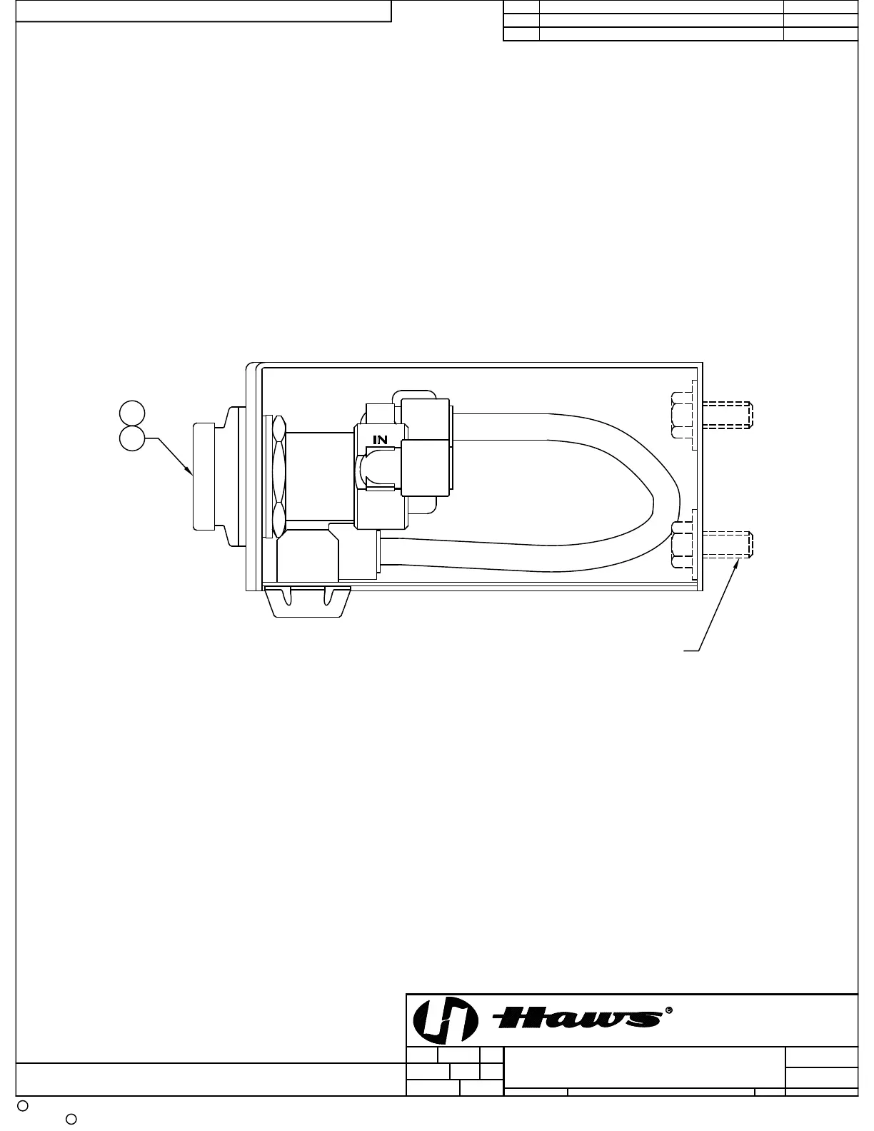
VALVE REPAIR KIT HF
VRK5874HF
ITEM DESCRIPTION PART NO.
PUSH BUTTON ASSY
PBA6
1
3/8"-16 UNC MOUNTING HARDWARE
NOT SUPPLIED
Bekijk gratis de handleiding van Haws 1920, stel vragen en lees de antwoorden op veelvoorkomende problemen, of gebruik onze assistent om sneller informatie in de handleiding te vinden of uitleg te krijgen over specifieke functies.
Productinformatie
| Merk | Haws |
| Model | 1920 |
| Categorie | Niet gecategoriseerd |
| Taal | Nederlands |
| Grootte | 1336 MB |







