Haws 1211SFH handleiding
Handleiding
Je bekijkt pagina 15 van 21

200mm
7 7/8"
897mm
35 5/16"*
27"
686mm
KNEE
CLEARANCE
*
18 3/4"
476mm
* 33"
839mm
BUBBLER
230mm
9 1/16"
TOE
CLEARANCE
2 1/4"
57mm
*
26 1/4"
667mm
(NOT
STUB-OUT
(VIEWED FROM TOP)
P-TRAP DETAIL
DRAIN STUB-OUT &
SUPPLIED)
(NOT SUPPLIED)
INLET
DRAIN
P-TRAP W/ 1-1/4"
WALL
FACE
73mm
2 7/8"
161mm
6 5/16"
2 3/8"
61mm
MAX
PAGE 15 OF 21
PAGE 15 OF 21
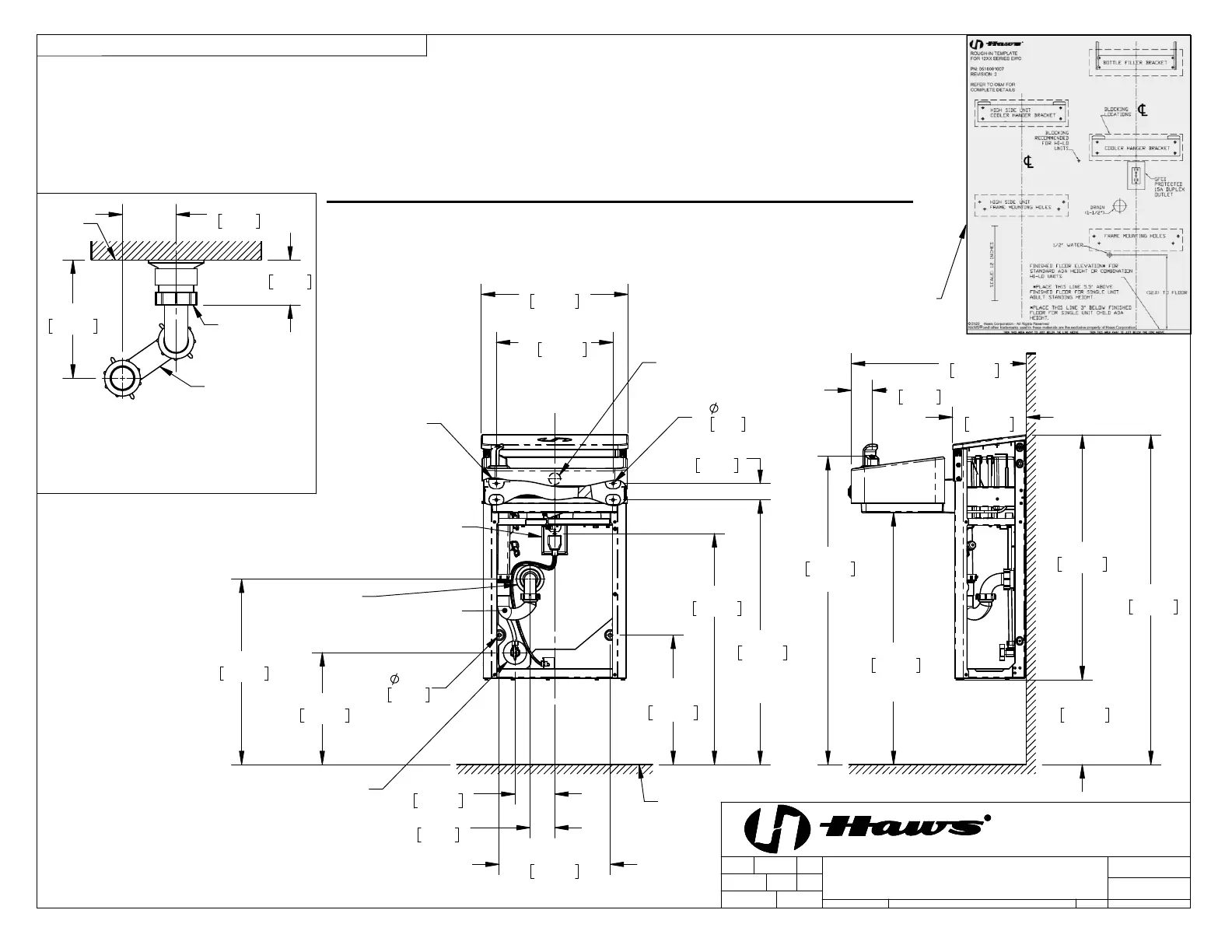
NOTES:
1. HOLD PLUMBING & ELECTRICAL DIMENSIONS ±1/4" (6.4mm). HOLD MOUNTING DIMENSIONS ±1/8" [±3.2MM].
2. ADHERING TO PROVIDED INSTALLATION HEIGHT DIMENSIONS WILL ALLOW A SINGLE WATER COOLER (OR THE LOW WATER COOLER IN A
HI-LO INSTALLATION), AND THE BOTTLE FILLER (IF APPLICABLE) TO BE INSTALLED AT ADULT ADA HEIGHT. FOR INSTALLATION HEIGHTS
OTHER THAN SHOWN, DIMENSIONS MARKED (*) MUST BE ADJUSTED ACCORDINGLY. WHEN INSTALLING THIS UNIT, LOCAL, STATE, OR
FEDERAL CODES SHOULD BE ADHERED TO.
SHEET 1 OF 7
0510000866.D
© 2020 Haws Corporation - All Rights Reserved. HAWS® and other trademarks used in these materials are the exclusive property of Haws Corporation.
ECN:
THIS DOCUMENT IS TRUE AND CORRECT AT TIME OF PUBLICATION. CONTINUED PRODUCT
IMPROVEMENTS MAKE SPECIFICATIONS AND MEASUREMENTS SUBJECT TO CHANGE WITHOUT NOTICE.
APPROVED:
DRAWN:
PART NUMBER
SCALE:
REVISION
JL
07/25/18
6
1:12
TM
09/29/20
DRAWING TYPE: SIZE: A
5343
BY:
DHP
INSTALLATION
DATE:
DATE:
REV. ECN:
5595
CHK'D.:
DHP
WEBSITE: WWW.HAWSCO.COM
MODEL(S)
1455 KLEPPE LANE
SPARKS, NEVADA 89431
(775) 359-4712 FAX (775) 359-7424
E-MAIL: HAWS@HAWSCO.COM
12XX ELECTRIC WATER COOLERS
(NOT SUPPLIED)
BRACKET
MOUNTING
RECOMMENDED
120VAC GFCI-PROTECTED ELECTRICAL
LINE
TYPICAL SINGLE (OR LOW) UNIT INSTALLATION
SIZE 4.5 X 2.75" WALLPLATE). DEDICATED CIRCUIT
(REFRIGERATION COMPONENTS HIDDEN FOR CLARITY)
COMPRESSION OR QUICK
CONNECT TUBING OUTLET)
RECEPTACLE, MIN. 15A SERVICE (USE STANDARD
FLOOR
W/ 1/2" IPS SUPPLY & 3/8"
DRAIN STUB-OUT
(NOT SUPPLIED)
(NOT SUPPLIED; REC. 90° VALVE
SUPPLY VALVE
P-TRAP
W/ 1-1/4" INLET
SENSOR LOCATION
(IF APPLICABLE)
7/16"
11mm
2X
15 11/16"
352mm
13 7/8"
* 2X
12"*
305mm
19 7/8"*
505mm
* 24 3/4"
9/32"
629mm
2X 1 3/4"
44mm
721mm
LOWER
BRACKET
HOLES
2X 12 1/2"
318mm
2 5/8"
67mm
4 1/4"
108mm
399mm
4X
7mm
* 28 3/8"
11 7/8"
302mm
FULL SCALE
ROUGH-IN TEMPLATE
PN 0510001007
AVAILABLE UPON REQUEST
Bekijk gratis de handleiding van Haws 1211SFH, stel vragen en lees de antwoorden op veelvoorkomende problemen, of gebruik onze assistent om sneller informatie in de handleiding te vinden of uitleg te krijgen over specifieke functies.
Productinformatie
Merk | Haws |
Model | 1211SFH |
Categorie | Niet gecategoriseerd |
Taal | Nederlands |
Grootte | 3610 MB |