Haws 1201SFH handleiding
Handleiding
Je bekijkt pagina 17 van 21

PAGE 17 OF 21
PAGE 17 OF 21
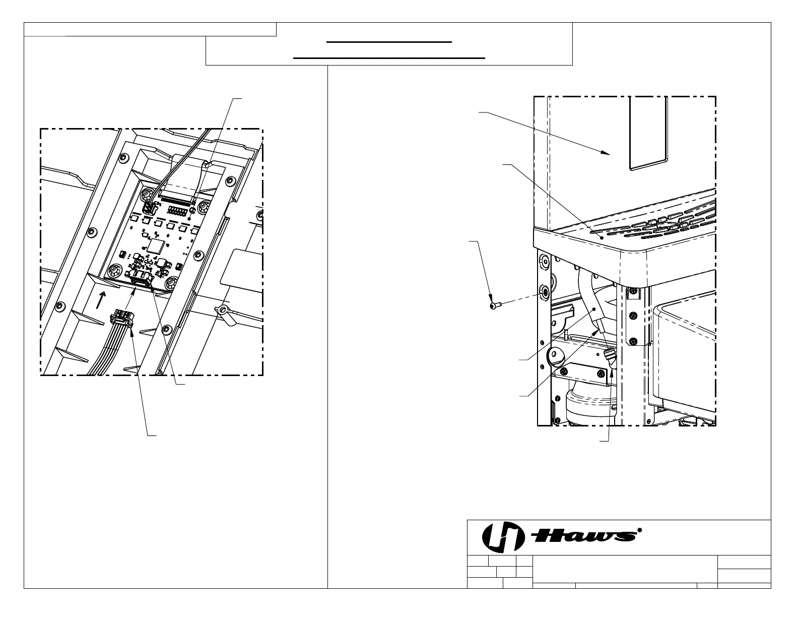
BOTTLE FILLER
INSTALLATION DETAILS
BOTTLE FILLER
BOTTLE FILLER
DRAIN BASIN
BOTTLE FILLER
MOUNTING SCREW
(
B
O
T
H
S
ID
E
S
)
3/8" - 1/4" QUICK-CONNECT ELBOW
(FIELD CONNECTION)
BOTTLE FILLER
INLET TUBING
FOAM INSULATION TUBING
(SUPPLIED)
BOTTLE FILLER MOUNTING &
TUBING CONNECTION
© 2020 Haws Corporation - All Rights Reserved. HAWS® and other trademarks used in these materials are the exclusive property of Haws Corporation.
THIS DOCUMENT IS TRUE AND CORRECT AT TIME OF PUBLICATION. CONTINUED PRODUCT
IMPROVEMENTS MAKE SPECIFICATIONS AND MEASUREMENTS SUBJECT TO CHANGE WITHOUT NOTICE.
APPROVED:
DRAWN:
PART NUMBER
SCALE:
REVISION
JL
07/25/18
6
1:12
TM
09/29/20
DRAWING TYPE: SIZE: A
5343
BY:
DHP
INSTALLATION
DATE:
DATE:
REV. ECN:
5595
CHK'D.:
MODEL(S)
1455 KLEPPE LANE
SPARKS, NEVADA 89431
(775) 359-4712 FAX (775) 359-7424
E-MAIL: HAWS@HAWSCO.COM
WEBSITE: WWW.HAWSCO.COM
DHP
ECN:
SHEET 3 OF 7
0510000866.D
12XX ELECTRIC WATER COOLERS
CIRCUIT
BOARD
WIRING HARNESS
FROM COOLER
WIRING HARNESS
RECEPTACLE
(FIELD CONNECTION)
WIRING HARNESS CONNECTION
(REAR OF BOTTLE FILLER)
Bekijk gratis de handleiding van Haws 1201SFH, stel vragen en lees de antwoorden op veelvoorkomende problemen, of gebruik onze assistent om sneller informatie in de handleiding te vinden of uitleg te krijgen over specifieke functies.
Productinformatie
Merk | Haws |
Model | 1201SFH |
Categorie | Niet gecategoriseerd |
Taal | Nederlands |
Grootte | 3610 MB |