Handleiding
Je bekijkt pagina 33 van 76

HU SV
33
BQ60S
BQ90S
KÉK
TÚLMELEGEDÉS VÉDŐ
PÁRATARTALOM-ÉRZÉKELŐ
OPCIÓ
KÁLYHA
TÁPEGYSÉG
BIZTOSÍTÉKOK
ELOSZTÓ DOBOZ
VENTILÁTOR
FÉNY
MARADÉKÁRAM
ESZKÖZ
PÁRATARTALOM-ÉRZÉKELŐ
KÉK
FEHÉR
FEHÉR
PIROS
PIROS
ZÖLD
SZÜRKE
SÁRGA
ÉRZÉKELŐ
TERMOSZTÁT
SÁRGA
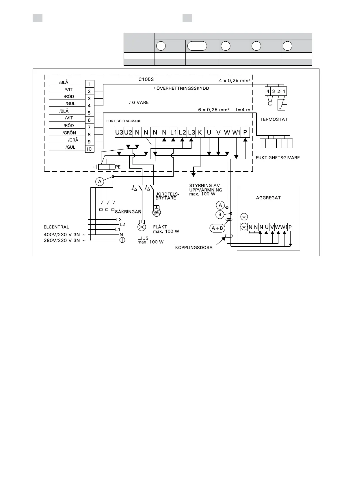
Kuva 10. C105S-ohjauskeskuksen ja BQ-S-kiukaan 3-vaihekytkentä
Bild 10. 3-fas elinstallationer av styrenhet C105S och BQ-S-aggregat
Kályha
Aggregat
Kábelek/Kablar 400V 3N~
mm
2
mm
2
mm
2
mm
2
mm
2
BQ60S 5 x 1,5 7 x 1,5 2 x 1,5 4 x 1,5 3 x 6
BQ90S 5 x 2,5 7 x 2,5 2 x 2,5 4 x 2,5 3 x 10
A
A+B B C
D
Bekijk gratis de handleiding van Harvia Qubic Combi HBQ904SM, stel vragen en lees de antwoorden op veelvoorkomende problemen, of gebruik onze assistent om sneller informatie in de handleiding te vinden of uitleg te krijgen over specifieke functies.
Productinformatie
Merk | Harvia |
Model | Qubic Combi HBQ904SM |
Categorie | Heater |
Taal | Nederlands |
Grootte | 11867 MB |