Hansgrohe ShowerTablet Select 700 handleiding
Handleiding
Je bekijkt pagina 32 van 44

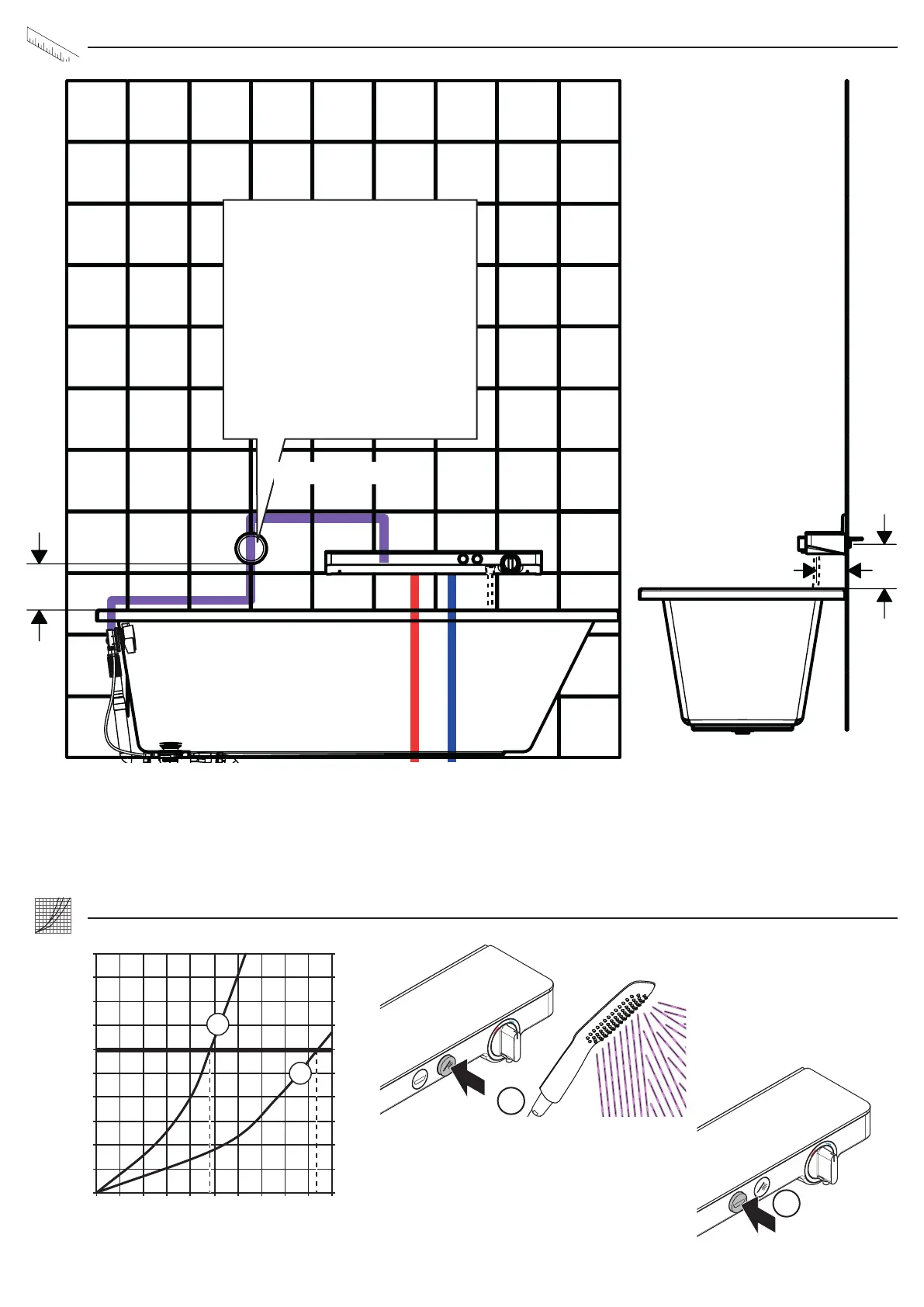
Maße
40
°C
1B
40
°C
4,5
0,0
0,5
1,0
1,5
2,0
2,5
3,0
3,5
4,0
5,0
bar
0,45
0,00
0,05
0,10
0,15
0,20
0,25
0,30
0,35
0,40
0,50
036912 15 18 21 24 27 30
Q = l/min
Q = l/sec
MPa
00,1 0,2 0,3 0,4 0,5
2
1
Durchflussdiagramm
1
2
150
150
106
Exafill
Rohrunterbrecher / Disconnecteur /
Pipe interrupter / Valvola antiriflusso /
Interuptor de tubería / Buisbeluchter /
Rørafbryder / Válvula anti-retorno /
Przerywacz rurowy / oddělovač trubky /
Prerušenie potrubia / 管道断续器 /
Прерыватель трубы / Csőmegszakító /
Putkikatkoin / Rörventil /
Vamzdžio pertraukiklis / Ventil cijevi /
Boru kesici / Valvă de oprire /
Διακοπή σωλήνα / Prekinjalnik cevi /
torukatkesti / Caurules atdalītājs /
Element za regulaciju pritiska u cevi vazduhom /
Røravbryter / Тръбен прекъсвач /
Ndërprerës i tubit /
ca. 15 l / min
32
Bekijk gratis de handleiding van Hansgrohe ShowerTablet Select 700, stel vragen en lees de antwoorden op veelvoorkomende problemen, of gebruik onze assistent om sneller informatie in de handleiding te vinden of uitleg te krijgen over specifieke functies.
Productinformatie
Merk | Hansgrohe |
Model | ShowerTablet Select 700 |
Categorie | Niet gecategoriseerd |
Taal | Nederlands |
Grootte | 8236 MB |