Handleiding
Je bekijkt pagina 45 van 66

First usePage EN-12
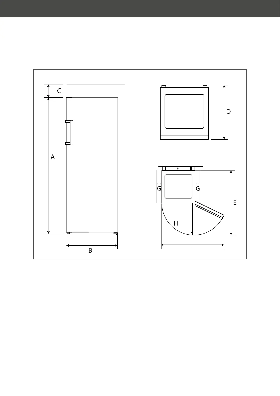
Space required according to the appliance
dimensions
A: 1720 mm B: 595 mm
C: 100 mm D: 650 mm*
E: 1145 mm F: 50–70 mm
G: 100 mm H: 130°
I: 1010 mm
* with door handle
Minimum distances and room size
1. Unpack the appliance and remove all
packaging, plastic moulding, adhesive
strips, protective film and foam padding
from the inside, outside and back of the
appliance.
2. Place the appliance on as flat and as firm
a base as possible. Observe the speci-
fied minimum distances (see “Minimum
distances and room size“ on page EN-12).
– Suitable locations are dry, well-venti-
lated areas that are as cool as pos-
sible.
– Unsuitable locations are ones with di-
rect sunlight or which are directly next
to an oven, hob or radiator.
Bekijk gratis de handleiding van Hanseatic HGS17260CNFI, stel vragen en lees de antwoorden op veelvoorkomende problemen, of gebruik onze assistent om sneller informatie in de handleiding te vinden of uitleg te krijgen over specifieke functies.
Productinformatie
| Merk | Hanseatic |
| Model | HGS17260CNFI |
| Categorie | Vriezer |
| Taal | Nederlands |
| Grootte | 6566 MB |


