Handleiding
Je bekijkt pagina 17 van 85

Einbau und Installation
Seite DE-17
Wenn keine hand werk li chen Fä hig kei ten
vor han den sind, soll ten Sie einen Fach-
man n beauftragen.
– Bei den Ein bau mö beln müssen die Fur nie-
re oder Kunst stoffbeläge mit hitzebeständi-
gem Kleber (100 °C) ver ar bei tet sein. Sind
Kle ber und Ober flä chen nicht temperatur-
beständig, kann sich der Be lag verformen
und lösen.
– Wenn unterhalb des Back ofens eine Schub-
la de an ge bracht wird, ist ein Zwi schen-
bo den er for der lich.
– Die Einbaunische darf keine Rückwand be-
sitzen, son dern höchstens eine Anstellkan-
te von maximal 50 mm.
– Der Einbauschrank kann wahl wei se mit
Lei sten oder einem Zwi schen bo den mit
Lüf tungs aus schnitt aus ge stat tet sein.
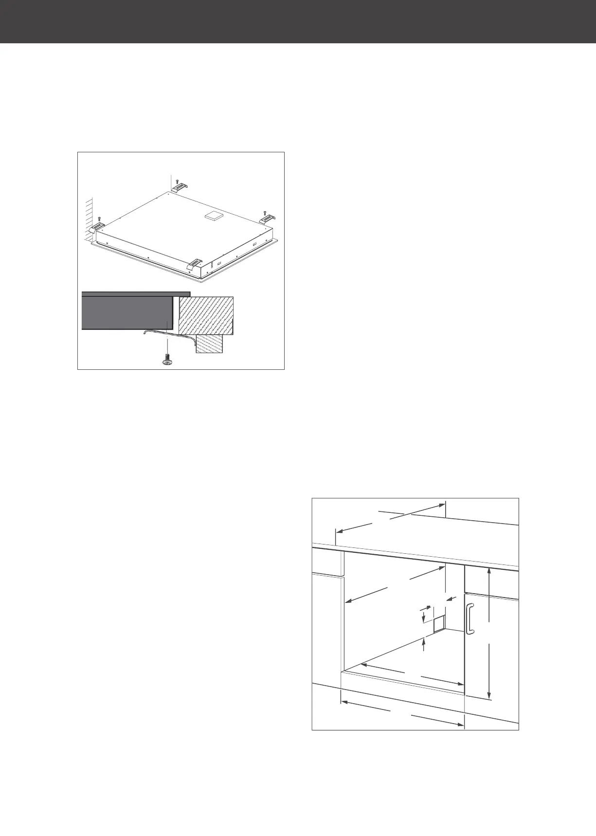
– Die Einbaunische muss folgende Mindest-
größe besitzen:
❶
600 mm
➋
606 mm
❸
560 mm
➍
575 mm
❺
600 mm
❻
max. 50 mm
➐
max. 50 mm
➋
➊
➏
➐
➍
➎
➌
Dicke Arbeitsplatte
5. Schrauben Sie die 4 Klammern je nach
Dicke der Arbeitsplatte von unten in das
Kochfeld. So verhindern Sie ein Verrut-
schen des Kochfelds.
Einbau des Backofens
Beachten Sie in jedem Fall die folgenden
Bedingungen:
– Bauen Sie den Backofen nicht direkt neben
einem Kühl- oder Gefrierschrank ein . Durch
die Wärme abgabe steigt dessen En er gie-
ver brauch unnötig.
– Der gün stig ste Platz ist ne ben dem Spül-
zentrum. Sie ha ben eine zu sätz li che Ab la-
ge flä che und schmutziges Ge schirr kann
gleich gereinigt werden.
– Überprüfen Sie vor dem Einbau, ob die Ge-
rätemaße mit Ihren Mö bel ma ßen überein-
stimmen.
– Der Backofen entspricht bezüglich des
Schut zes gegen Feu er gefahr dem Typ Y
(EC 335-2-6). Sie dürfen Geräte dieses
Typs nur auf einer Seite neben höheren
Küchenmöbeln, Ge rä ten oder Wän den
ein bauen.
– Gegebenenfalls müssen Ihre Ein bau mö bel
ent spre chend nachgearbeitet werden.
Bekijk gratis de handleiding van Hanseatic 65C90C7-E11B000, stel vragen en lees de antwoorden op veelvoorkomende problemen, of gebruik onze assistent om sneller informatie in de handleiding te vinden of uitleg te krijgen over specifieke functies.
Productinformatie
| Merk | Hanseatic |
| Model | 65C90C7-E11B000 |
| Categorie | Fornuis |
| Taal | Nederlands |
| Grootte | 9518 MB |







