Handleiding
Je bekijkt pagina 51 van 482

Описание на продукта
51
Описание на про дукта
Предупреждение
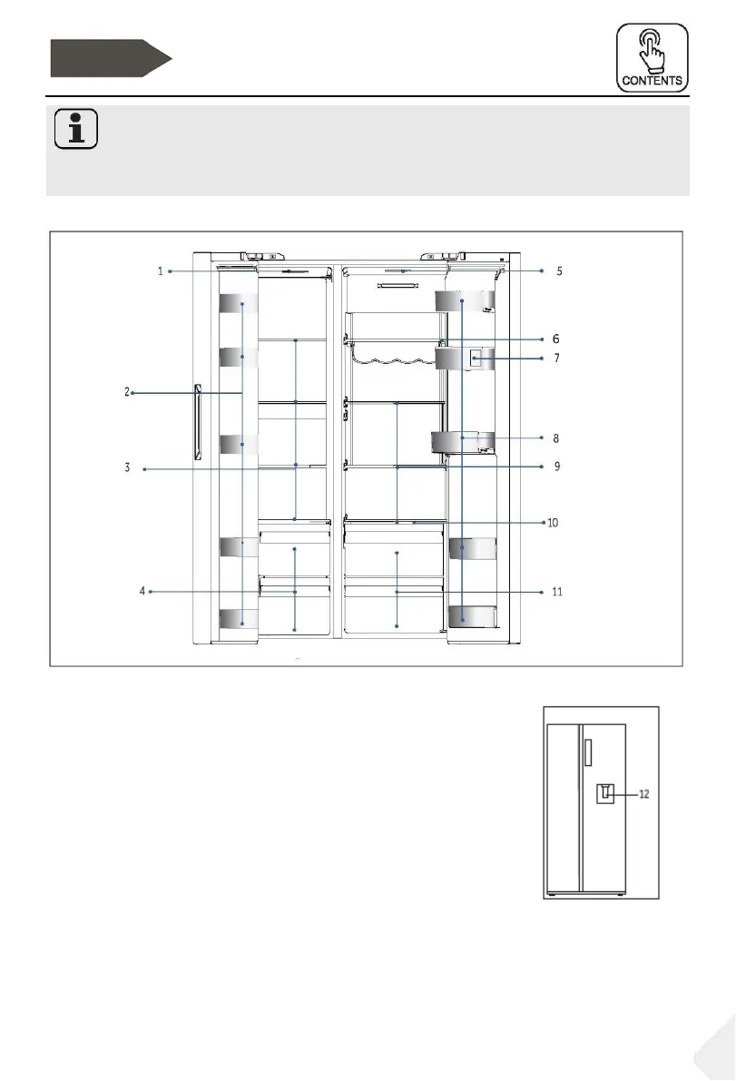
Поради технически промени и наличие на различни модели, някои от илюстра-
циите в това ръководство може да се различават от Вашия модел. (HSW59F18DW*)
A: Фризерно отделение
B: Хладилно отделение
1 Горна лампа
2 Поставка за бутилки
3 Стъклени рафтове
4 Чекмеджета
5 Горна лампа
6 Винен рафт
7 Резервоар за вода
8 Поставка за бутилки
9 Стъклени рафтове
10 Капак за Wet zone
11 Чекмеджета
12 Диспенсър
Bekijk gratis de handleiding van Haier HSW59F18DWMM, stel vragen en lees de antwoorden op veelvoorkomende problemen, of gebruik onze assistent om sneller informatie in de handleiding te vinden of uitleg te krijgen over specifieke functies.
Productinformatie
Merk | Haier |
Model | HSW59F18DWMM |
Categorie | Koelkast |
Taal | Nederlands |
Grootte | 58981 MB |