Handleiding
Je bekijkt pagina 12 van 482

Product description
12
Notice
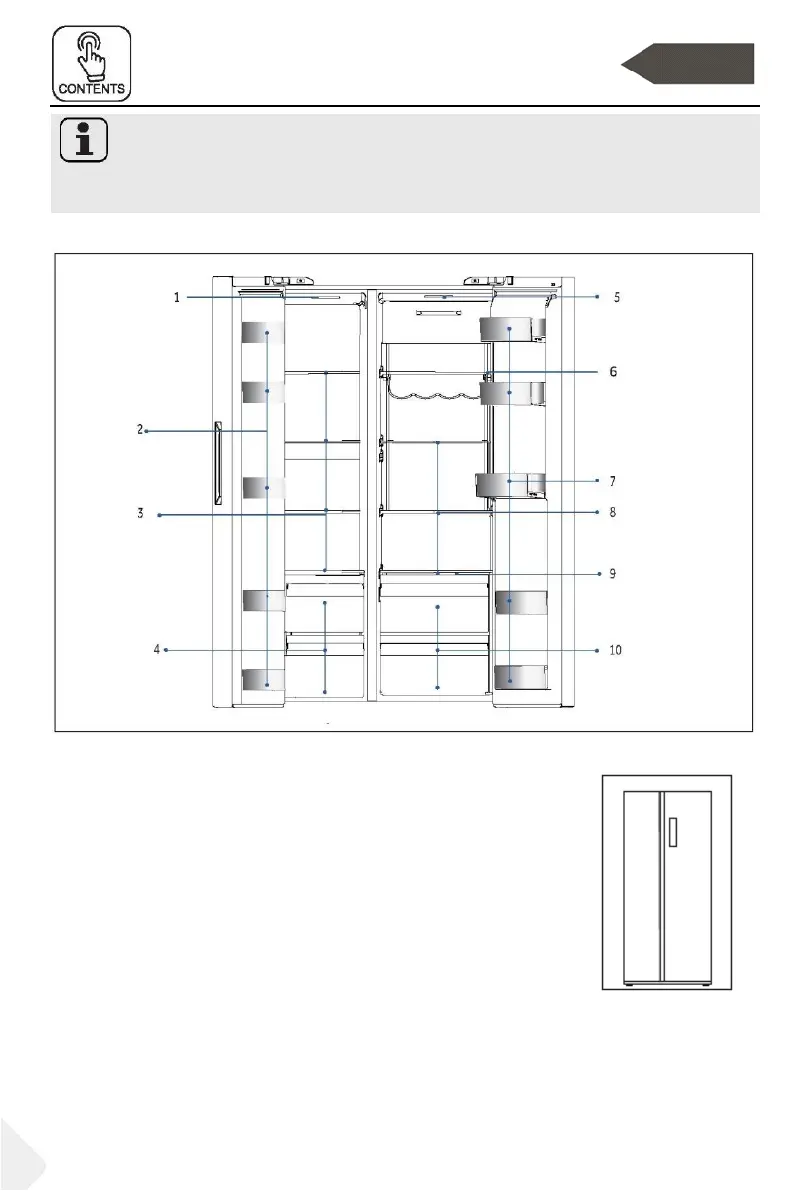
Due to technical changes and different models, some of the illustrations in this manual
may differ from your model. (HSW59F18DN*)
A: Freezer compartment
B: Refrigerator compartment
1 Ceiling lamp
2 Bottle hold
3 Glass shelves
4 Drawers
5 Ceiling lamp
6 Wine rack
7 Bottle holder
8 Glass shelves
9 Wet zone cover plate
10 Drawers
Bekijk gratis de handleiding van Haier HSW59F18DWMM, stel vragen en lees de antwoorden op veelvoorkomende problemen, of gebruik onze assistent om sneller informatie in de handleiding te vinden of uitleg te krijgen over specifieke functies.
Productinformatie
Merk | Haier |
Model | HSW59F18DWMM |
Categorie | Koelkast |
Taal | Nederlands |
Grootte | 58981 MB |