Handleiding
Je bekijkt pagina 31 van 36

3RZHUVXSSO\UHIHUWRUDWLQJSODWH
Permissible ambient temperature
5°C to 35°C
9ROXPH
Additional data
FRQVXPSWLRQRIWKHORZSRZHUPRGHV$FWXDOHQHUJ\FRQVXPSWLRQSHUF\FOHZLOOGHSHQGRQKRZ
the appliance is used.
In case there is a power management system.
This program used at full and partial load is the standard drying program to which the infor-
PDWLRQLQWKHODEHODQGWKHnjFKHUHODWHVWR7KLVLVWKHSURJUDPVXLWDEOHIRUGU\LQJQRUPDOZHW
FRWWRQODXQGU\DQGLWLVWKHPRVWHǎFLHQWSURJUDPLQWHUPVRIHQHUJ\FRQVXPSWLRQIRUFRWWRQ
&ODVV*LVWKHOHDVWHǎFLHQWDQG&ODVV$LVWKHPRVWHǎFLHQW
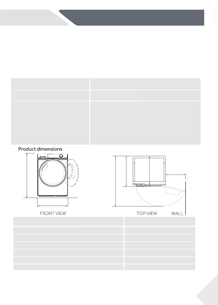
PRODUCT DIMENSIONS
B
Overall width of product mm
A
Overall height of product mm
C
Overall depth of product
Overall depth of product mm
(To main control board size) mm
D
Depth of door open mm
E
F
Minimum door clearance
to adjacent wall mm
845
595
Note: The exact height of your dryer is dependent on how far the feet are extended from
the base of the machine. The space where you install your dryer needs to be at least
40mm wider and 20mm deeper than its dimensions.
31
EN
13-Technical data
A
B
F
E
C
D
YROWDJHFXUUHQWLQSXW
640
680
1170
188
150 g
5
Ş9+]6b$:
Refrigerant
Based on 100 drying cycles of the standard Eco program at full and partial load, and the
Bekijk gratis de handleiding van Haier HD100-CQ387BU1, stel vragen en lees de antwoorden op veelvoorkomende problemen, of gebruik onze assistent om sneller informatie in de handleiding te vinden of uitleg te krijgen over specifieke functies.
Productinformatie
Merk | Haier |
Model | HD100-CQ387BU1 |
Categorie | Wasdroger |
Taal | Nederlands |
Grootte | 5840 MB |