Haier FlexFit 4Q36FF2BEA handleiding
Handleiding
Je bekijkt pagina 107 van 118

31-5001082 Rev. 2 27
ESPAÑOL
Paso 3 – Instalación de la Unidad de Exterior
INSTRUCCIONES DE INSTALACIÓN
Model:
B2FF81 Q2**
B2FF42 Q3**
B2TR02 Q2**
B2TR42 Q3**
B2FF63 Q4**
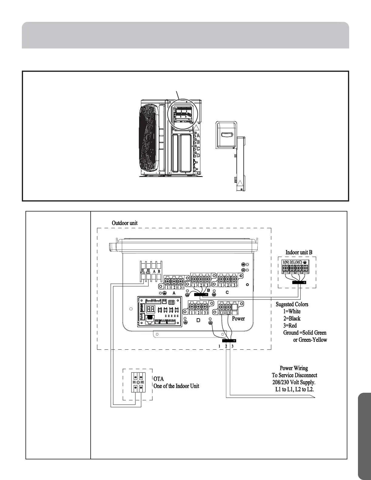
Información sobre el Cableado
NOTA: En los modelos4Q36RT2B**
y 5Q42RT2B**, el panel lateral se
deberá retirar para poder acceder a la
terminal y al área del cableado.
A
¡æ
B
C
D
E
Tapa de la
Válvula
Terminal y Área del Cableado
Tapa de la
Terminal
Bekijk gratis de handleiding van Haier FlexFit 4Q36FF2BEA, stel vragen en lees de antwoorden op veelvoorkomende problemen, of gebruik onze assistent om sneller informatie in de handleiding te vinden of uitleg te krijgen over specifieke functies.
Productinformatie
| Merk | Haier |
| Model | FlexFit 4Q36FF2BEA |
| Categorie | Niet gecategoriseerd |
| Taal | Nederlands |
| Grootte | 12094 MB |







