Handleiding
Je bekijkt pagina 6 van 52

6 31-5000408 Rev. 2
ENGLISH
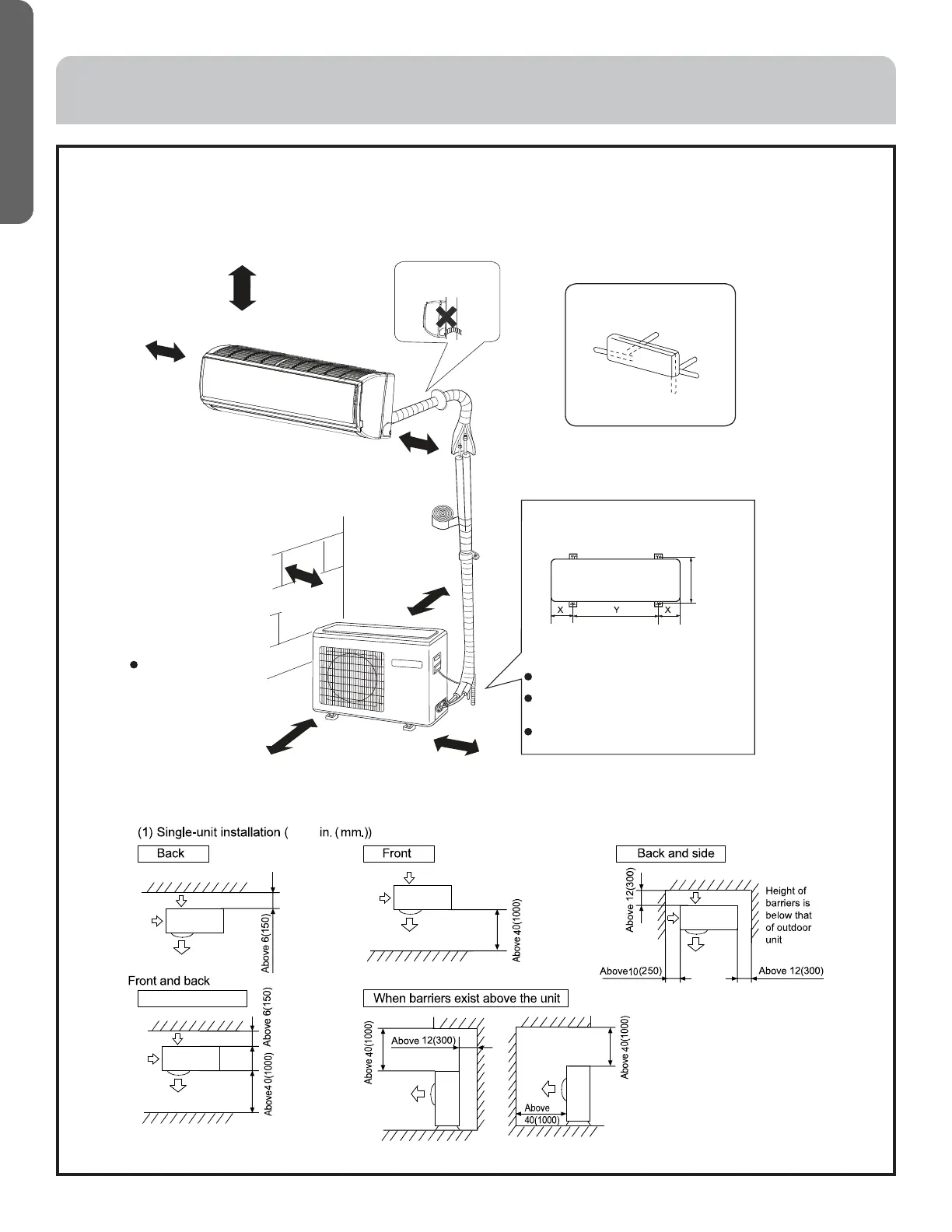
SYSTEM CLEARANCES
Selection of installation location of outdoor
unit:
MINIMUM CLEARANCES
(Appearance may vary)
Mounting the outdoor unit:
The distance between
the indoor unit and the
or should be more
than 6 feet.
more than
4in.
more than 4in.
more than 4in.
more than 4in.
more than 6in.
more than 24in.
more than 6in.
Attention must be paid to
the pitch of drain hose
Z
1 2
Refer to Submittal Document for unit dimensions.
Mounting feet positions for the outdoor unit.
Securely attach the unit to a mounting pad
or brackets with 7/16" (10mm) bolts.
Use the mounting feet pads or vibration mats
where noise transmission may be a concern.
Follow local code when mounting the unit
strong winds or earthquakes.
This picture is for reference only, as your product may look different. Read your manual before installation. Explain the
operation of the unit to the user according to this manual.
Piping Exit Options
Rear left
Left
Rear
right
Right
Below
Bekijk gratis de handleiding van Haier AW12TE1VHA, stel vragen en lees de antwoorden op veelvoorkomende problemen, of gebruik onze assistent om sneller informatie in de handleiding te vinden of uitleg te krijgen over specifieke functies.
Productinformatie
Merk | Haier |
Model | AW12TE1VHA |
Categorie | Airco |
Taal | Nederlands |
Grootte | 6458 MB |