Handleiding
Je bekijkt pagina 28 van 86

Î×ÐÕÒÜÑ
ØÞÝÍØØÛÞ×ÒÝÜ
B-10
àÒÛÒ×ÐÍÒÊÐÛÊÖÜ
!Þ$"$(ÕÙ"ÑÍÊ
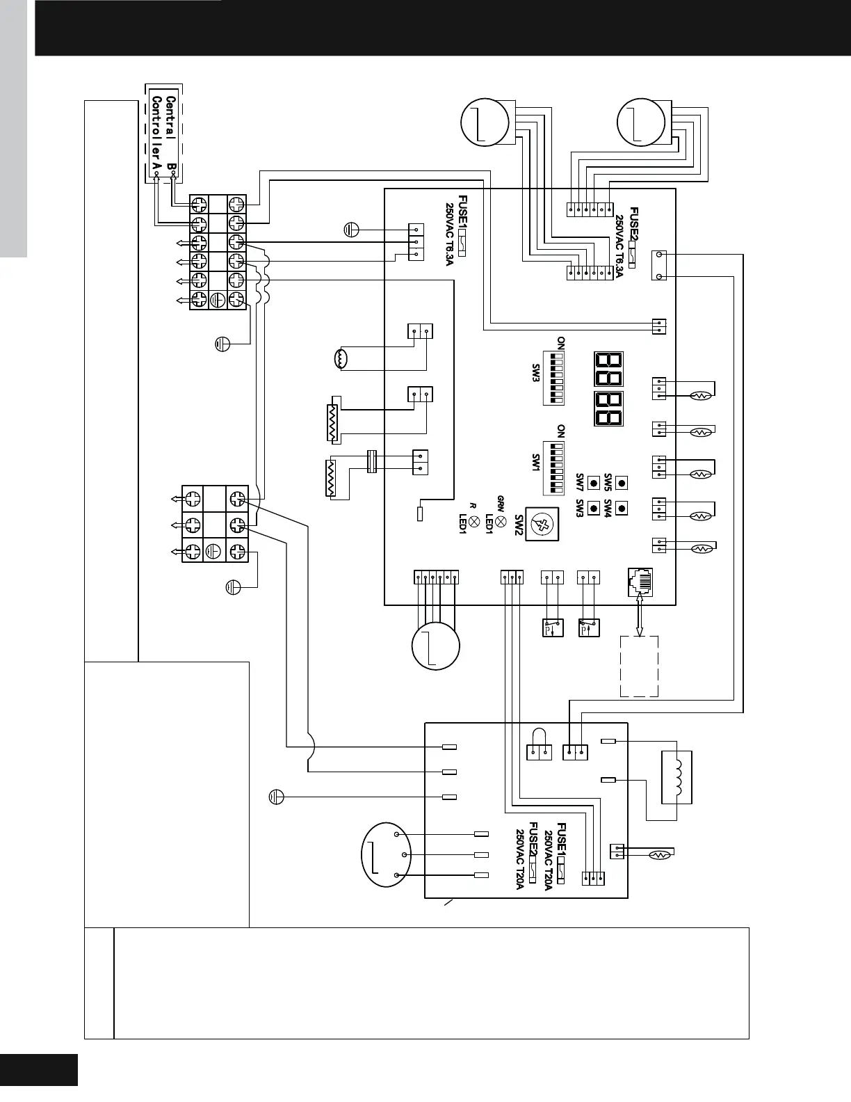
1.Dashed parts are optional.
2.SW3 is for central control adress selection.Refer to service manual to get more details about
DIP switches settings.
3.Once out of factory do not change the switches of SW1,SW2,SW3 without technical guidence.
4.For maintenance safety,please operate after pow- ler supply cut off at least 3 minutes
/
CN2
W
CN7 CN9
CN8
CON3
W
B
R
/
4WV
W
Crankcase
Heater
Base pan
Heater
Y/G
& &
Y/G
CN23
CN5
ACL
ACN
PE
U
V
W
U
V
W
0
CN3
M
Reactor
P
PGND
CN28
W
R
MAIN CONTROL
BOARD
CN30
LED5
LED6
To Indoor unit
terminal block
To Power supply
HP
LP
12345678 12345678
CN16 CN21
CN13 CN18 CN17
Td Te Ta Tcm Ts
BL
YL
B
W
To RJ45
device
CN6
CN29
CN26
COMPRESSOR
M
E.E.V
CN4
CN22
GRN
P11
COMPRESSOR DRIVE MODULE
LI
LO
CN8
Tfin
W
0150557203
NOTE:
)
(
'
&
%
$
1U4248LP2HDA1
$6+8&''$',36ZLWFKIDFWRU\GHIDXOWVHWWLQJφ
6:$UURZSRLQWWRχ6:DOODW2))3RVWLRQ
6:DOODW2))3RVWLRQ
M
DC FAN
MOTOR
˄
LOWER)
DC FAN
MOTOR
˄
UPPER)
W
B
B
W
B
Y/G
OR OR
GR
GR
GR
Y/G
R
W
W
B
W
W
W
R
W
B
OR:orange,B:black,BL:blue,R:red,
Y/G:yellow/green,W:white,YL:yellow,
BR:brown,GRN:green
E.E.V:Electro expansion valve
LP/HP:Low /high pressure switch
Tc:Condensing Temp.Sensor
Ts:Compressor Suction Temp.Sensor
Ta: Ambient Temp.Sensor
Td:Compressor Discharge Temp.Sensor
Te:Defrosting Temp.Sensor
Tfin:Module Temp.Sensor
GR
R
YL
W
GRN
W
W
R
R
Y/G
CN1
31-5000936-1
Bekijk gratis de handleiding van Haier Arctic 1U3036LP2HDA, stel vragen en lees de antwoorden op veelvoorkomende problemen, of gebruik onze assistent om sneller informatie in de handleiding te vinden of uitleg te krijgen over specifieke functies.
Productinformatie
Merk | Haier |
Model | Arctic 1U3036LP2HDA |
Categorie | Airco |
Taal | Nederlands |
Grootte | 34168 MB |