Haier Advanced Plus Series 1U15AP2HDB handleiding
Handleiding
Je bekijkt pagina 9 van 14

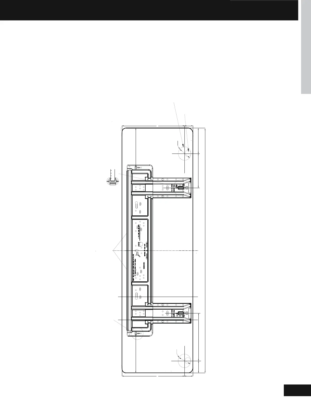
4. INDOOR UNITS
INDOOR UNIT
9
ENGLISH
$&Öòøñ÷ìñêËõäæîè÷ö
:NXU[MNZNK]GRRNURK
*XGOTNURKVUYOZOUT
Use a tape measure as shown.
Position the end of the tape
measure at
Place a leveler on these tabs.
8KIUSSKTJKJSU[TZOTMVRGZK
XKZKTZOUTYVUZYYVUZYOTGRR
Êðòøñ÷ìñêåõäæîè÷äñçðòøñ÷ìñê÷èðóïä÷èäõèìñæïøçèçéòõëìêëúäïïìñö÷äïïä÷ìòñÍìðèñöìòñöùäõüåüðòçèïÎûäðóïèåèïòúìö
for illustration purposes only.
31-5000933 Rev. 0
Bekijk gratis de handleiding van Haier Advanced Plus Series 1U15AP2HDB, stel vragen en lees de antwoorden op veelvoorkomende problemen, of gebruik onze assistent om sneller informatie in de handleiding te vinden of uitleg te krijgen over specifieke functies.
Productinformatie
Merk | Haier |
Model | Advanced Plus Series 1U15AP2HDB |
Categorie | Niet gecategoriseerd |
Taal | Nederlands |
Grootte | 1937 MB |