Growatt SPF3000-6000T-HVM-G2 handleiding
Handleiding
Je bekijkt pagina 6 van 48

4
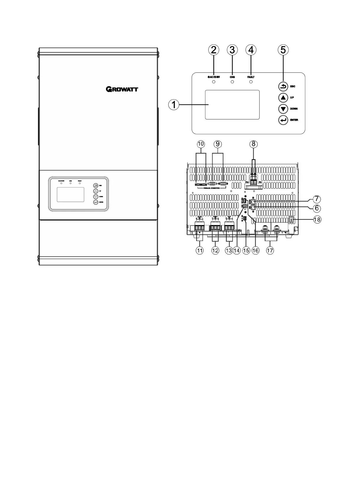
Product Overview
1. LCD display
2. Status indicator
3. Charging indicator
4. Fault indicator
5. Function buttons
6. RS485 communication Port (for expansion)
7. BMS communication Port(support CAN/RS485 protocol)
8. PV input
9. Parallel communication ports
10. Current sharing ports
11. AC output 1
12. AC output 2
13.AC input
14. USB communication port
15. Dry contact
16. WiFi/GPRS communication port
17. Battery input
18. Power on/off switch
Bekijk gratis de handleiding van Growatt SPF3000-6000T-HVM-G2, stel vragen en lees de antwoorden op veelvoorkomende problemen, of gebruik onze assistent om sneller informatie in de handleiding te vinden of uitleg te krijgen over specifieke functies.
Productinformatie
| Merk | Growatt |
| Model | SPF3000-6000T-HVM-G2 |
| Categorie | Niet gecategoriseerd |
| Taal | Nederlands |
| Grootte | 9112 MB |







