Growatt SPF 4000-12000T -MPV handleiding
Handleiding
Je bekijkt pagina 5 van 33

3
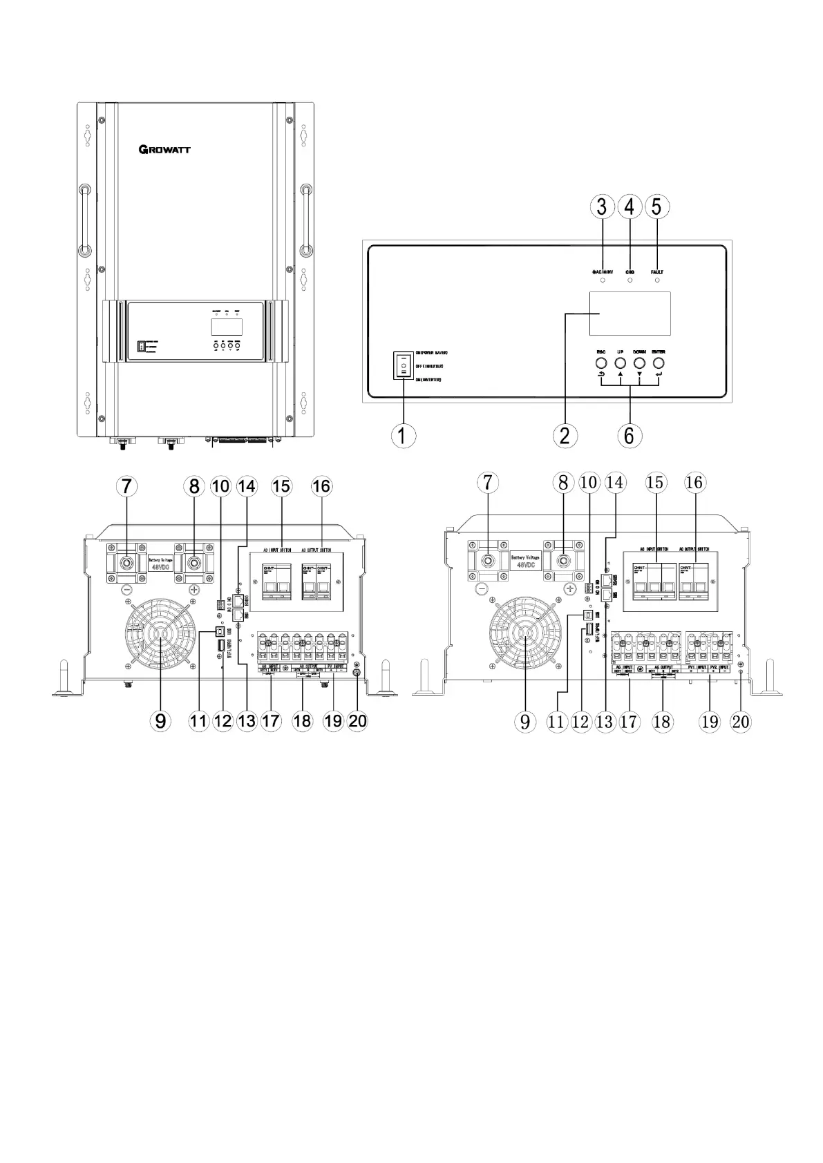
Product Overview
(4KW/5KW/6KW) (8KW/10KW/12KW)
1. ON/OFF Power Switch
2. LCD Display
3. Status Indicator
4. Charging Indicator
5. Fault Indicator
6. Function Buttons
7. Negative Battery Terminal
8. Positive Battery Terminal
9. DC Fan
10. Dry Contact For AGS
11. USB Port
12. Wi-Fi/GPRS Device Port
13. BMS Port
14. RS485/Remote LCD Port(Optional)
15. AC Input Breaker
16. AC Output Breaker
17. AC Input Terminal
18. AC Output Terminal
19. PV Input Terminal
20. Grounding Terminal
Bekijk gratis de handleiding van Growatt SPF 4000-12000T -MPV, stel vragen en lees de antwoorden op veelvoorkomende problemen, of gebruik onze assistent om sneller informatie in de handleiding te vinden of uitleg te krijgen over specifieke functies.
Productinformatie
| Merk | Growatt |
| Model | SPF 4000-12000T -MPV |
| Categorie | Niet gecategoriseerd |
| Taal | Nederlands |
| Grootte | 5292 MB |







