Handleiding
Je bekijkt pagina 13 van 35

Installation notice
7
2
12
8
13
3
9
4
5
14
10
6
WARNING
11
WARNING
Screw driver
Impact drill
Pipe cuer
Open-end
detector
wrench
Leakage
Vacuum pump
Pressure meter
Level meter
meter
Measuring
tape
Universal
spanner
Inner hexagon
Drill head
Pipe expander
Tools for installation
Torque wrench
Safety precauons for installing and
relocang the unit
8
NOTICE
Please contact the local agent for installaon.
Don’t use unqualified power cold.
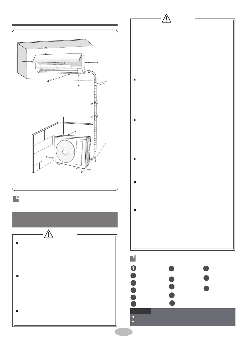
At least 15cm
A
At least 250cm
Spac e ceilinge to th
t least 15cm
Space to the wall
At least 15cm
the wallSpace to
At least 300cm
Space to the obstruction
Space to the floor
Drainage pipe
Space to the obstruction
At least 50cm
Space to the obstruction
At least 30cm
50cmAt least
Space to the obstruction
Space to the obstruction
At least 200cm
Space to the wall
At least 30cm
To ensure safety, please be mindful of the
following precauons.
When installing or relocang the unit, be sure to
keep the refrigerant circuit free from air or
substances other than the specified refrigerant.
Any presence of air or other foreign substance in
the refrigerant circuit will cause system pressure
rise or compress or rupture, resulng in injury.
When installing or moving this unit, do not
charge the refrigerant which is not comply with
that on the nameplate or unqualified refrigerant.
Otherwise, it may cause abnormal operaon,
wrong ac on, mechanical malfuncon or even
serious safety accident.
When refrigerant needs to be recovered during
relocang or repairing the unit, be sure that the
unit is running in cooling mode.
Then, fully close the valve at high pressure side
(liquid valve). About 30-40 seconds later, fully close
the valve at low pressure side (gas valve), immedi-
ately stop the unit and disconnect power. Please
note that the me for refrigerant recovery should
not exceed 1 minute.
If refrigerant recovery takes too much me, air may
be sucked in and cause pressure rise or compressor
rupture, resulng in injury.
During refrigerant recovery, make sure that liquid
valve and gas valve are fully dosed and power is
disconnected before detaching the connecon pipe.
If compress or starts running when stop valve is
open and connecon pipe is not yet connected, air
will be sucked in and cause pressure rise or
compressor rupture, resulng in injury.
When installing the unit, make sure that connecon
pipe is securely connected before the compress or
starts running.
If compressor starts running when stop valve is
open and connecon pipe is not yet connected, air
will be sucked in and cause pressure rise or
compress or rupture, resulng in injury.
Prohibit installing the unit at the place where there
may be leaked corrosive gas or flammable gas.
If there is leaked gas around the unit, it may cause
explosion and other accidents.
Do not use extension cords for electrical connec-
ons. If the electric wire is not long enough, please
contact a local service center authorized and ask for
a proper electric wire. Poor connecons may lead to
electric shock or fire.
Use the specified types of wires for electrical
connecons between the indoor and outdoor units.
Firmly damp the wires so that their terminals
receive no external stresses. Electric wires with
insufficient capacity, wrong wire connecons and
insecure wire terminals may cause electric shock or
fire.
Bekijk gratis de handleiding van Gree GIC12UZ, stel vragen en lees de antwoorden op veelvoorkomende problemen, of gebruik onze assistent om sneller informatie in de handleiding te vinden of uitleg te krijgen over specifieke functies.
Productinformatie
Merk | Gree |
Model | GIC12UZ |
Categorie | Airco |
Taal | Nederlands |
Grootte | 5040 MB |