Handleiding
Je bekijkt pagina 19 van 32

18
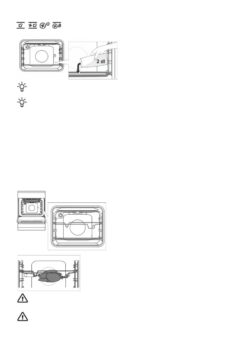
BAKING WITH STEAM
With these systems, you can cook with the addition of steam. Steam results in better browning
and more crunchiness of the surface.
Place a baking sheet into the first guide when the oven
is still cool. Pour a maximum of 2 dl of water onto the
baking sheet. Place the food to be cooked on the
second rack and start the system.
Do not insert the deep baking tray into the first guide, insert it one level higher.
For optimum operation of the function, do not open the oven door and do not add water during the cooking
process.
DESCRIPTIONS OF SYSTEMS
• Heating an empty oven consumes a lot of energy. Hence, baking several types of pastry or several pizzas
successively will save a lot of energy as the oven will already have been preheated.
• Use dark, black silicon-layered or enamel-coated baking sheets and trays as they conduct the heat very well.
• When using parchment paper, make sure it is resistant to high temperatures.
• When preparing food, a lot of steam is formed inside the oven, which is drained through the chimney at the back of
the appliance. The steam might condense on the door and lid of the appliance (depending on the model). This is a
standard phenomenon which has no effect on the operation of the appliance. After the end of the cooking proces,
wipe the overflowing condensed water with a cloth.
• Switch off the oven approximately 10 minutes before the end of the cooking process to save energy by making use
of the accumulated heat.
• Do not cool the food in a closed oven to prevent condensation (dew).
Cooking with the rotisserie (depending on the model)
Maximum temperature when using the rotisserie is 230°C.
Insert the skewer support into the 3rd guide from the bottom and
place the shallow baking sheet into the bottom (1st) guide to
serve as a drip tray.
Impale the meat on the skewer and tighten the screws.
Place the skewer handle on the front skewer support and insert
the tip into the opening in the right hand side of the rear oven
cavity wall (the opening is protected with a rotating cover).
Undo the skewer handle and close the oven door.
Switch on the oven and select the LARGE GRILL system.
The grill shall only be used when the oven door is closed. Do not use the grill on position 4.
Do not insert the deep baking tray into the first guide.
Bekijk gratis de handleiding van Gorenje GEIT5C61XPG, stel vragen en lees de antwoorden op veelvoorkomende problemen, of gebruik onze assistent om sneller informatie in de handleiding te vinden of uitleg te krijgen over specifieke functies.
Productinformatie
| Merk | Gorenje |
| Model | GEIT5C61XPG |
| Categorie | Fornuis |
| Taal | Nederlands |
| Grootte | 4380 MB |







