Goodwe SCU3000A handleiding
Handleiding
Je bekijkt pagina 11 van 35

7
03 Product Introduction
User Manual V1.2-2024-12-01
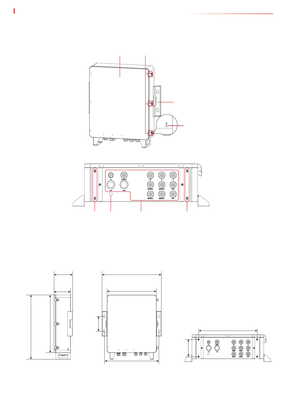
3.4 Parts and Dimension
Cabinet door Lock
Mounting plate
Grounding point
Fixing hole Fixing holeCable routing
hole
Ventilation
valve
226mm
(8.90in.)
201mm
(7.91in.)
723mm
(28.46in.)
600mm
(23.62in.)
700mm
(27.56in.)
780mm
(30.71in.)
180mm
(7.09in.)
660mm
(25.98in.)
488mm
(19.21in.)
144mm
(5.67in.)
Bekijk gratis de handleiding van Goodwe SCU3000A, stel vragen en lees de antwoorden op veelvoorkomende problemen, of gebruik onze assistent om sneller informatie in de handleiding te vinden of uitleg te krijgen over specifieke functies.
Productinformatie
| Merk | Goodwe |
| Model | SCU3000A |
| Categorie | Niet gecategoriseerd |
| Taal | Nederlands |
| Grootte | 4714 MB |







