Handleiding
Je bekijkt pagina 87 van 144

Instructions
de sécurité
Mode d'emploi Entretien et nettoyage Conseils de dépannage Soutien à la clientèle
www.electromenagersge.ca
Ne frottez pas et ne nettoyez pas
le joint de porte car il a une résistance
extrêmement faible à l’abrasion.
Si vous remarquez qu’il devient usé,
s’effiloche, est endommagé de quelque
façon ou a été déplacé sur la porte, vous
devriez le remplacer.
Pour nettoyer l’intérieur de la porte :
■ Puisque la section à l’intérieur du joint se
nettoie durant le cycle d’autonettoyage,
aucun besoin de le nettoyer à la main.
■ La section à l’extérieur du joint et la
doublure de porte se nettoient avec un
tampon à récurer de plastique ou rempli
de savon, de l’eau chaude et du détergent.
Rincez bien avec une solution de vinaigre
et d’eau.
Pour nettoyer l’extérieur de la porte :
■ Utilisez du savon et de l’eau pour bien laver
le dessus, les côtés et l’avant de la porte du
four. Rincez bien. Vous pouvez aussi utiliser
un nettoyant pour le verre pour nettoyer le
verre à l’extérieur de la porte. Ne laissez
pas l’eau couler dans les ouvertures des
évents.
■ Si des taches sur la garniture d’évent de la
porte restent, utilisez un nettoyant doux
abrasif et un racloir éponge pour de
meilleurs résultats.
■ Les marinades, les jus de fruits, les sauces
tomates et les produits pour arroser
contenant des acides peuvent provoquer
une décoloration et doivent être essuyés
immédiatement. Lorsque la surface est
froide, nettoyez et rincez.
■ N’utilisez pas de nettoyant de four, de
poudres de nettoyage ou d’abrasifs forts sur
l’extérieur de la porte.
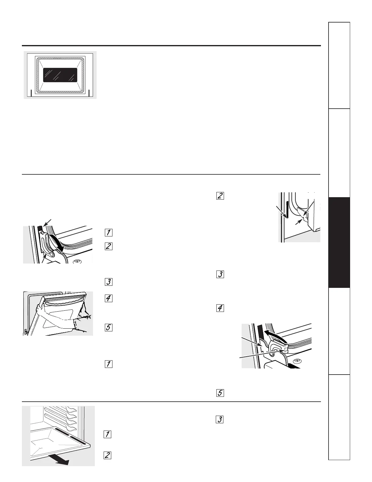
Retrait de la porte du four
Nettoyage de la porte du four
La porte est très lourde. Attention en retirant et
soulevant la porte.
Ne soulevez pas la porte par la poignée.
Pour retirer la porte :
Ouvrez entièrement la porte.
Poussez les verrous de la charnière vers
le bas vers le cadre de porte, jusqu’à la
position déverrouillée. Un outil, comme
un petit tournevis à lame plate pourrait
être nécessaire.
Agrippez fermement les deux côtés de
la porte sur le dessus.
Fermez la porte à la position de retrait
de la porte, soit à moitié chemin entre
la position d’arrêt de gril et la position
entièrement ouverte.
Soulevez la porte vers le haut jusqu’à ce
que le bras de charnière soit dégagé de
la fente.
Pour replacer la porte :
Agrippez fermement les deux côtés de
la porte sur le dessus.
Avec la porte
au même
angle que la
position de
retrait, placez
l’enfoncement du
bras de charnière
dans le bord
inférieur de la fente
de la charnière. L’encoche du bras de
charnière doit être bien installée dans le
bas de la fente.
Ouvrez entièrement la porte.
Si la porte ne s’ouvre pas entièrement,
l’enfoncement ne s’installe pas
correctement dans le bord
inférieur de la fente.
Poussez le verrou de la charnière vers le
haut contre le cadre avant de la cavité
du four, en position verrouillée.
Fermez la porte du four.
Verrou de
charnière
Position de retrait
Enfoncement
Bord
inférieur
de la
fente
Verrou de charnière
Fente
Poussez les verrous de la charnière
vers le haut pour verrouiller.
Tirez les verrous de la charnière
vers le bas pour déverrouiller.
Bras de charnière
Bras de
charnière
Fond de four amovible
Pour retirer le fond du four et faciliter le
nettoyage :
Retirez la porte du four en suivant les
instructions de la section
Retrait de la
porte du four
.
Agrippez les fentes du fond du four
arrières de chaque côté et sortez-le.
Nettoyez le fond du four à l’eau chaude
savonneuse.
IMPORTANT :
replacez toujours le fond
de four amovible avant de l’utiliser à nouveau.
Fond de four
87
Bekijk gratis de handleiding van GE PGS908BEMBB, stel vragen en lees de antwoorden op veelvoorkomende problemen, of gebruik onze assistent om sneller informatie in de handleiding te vinden of uitleg te krijgen over specifieke functies.
Productinformatie
| Merk | GE |
| Model | PGS908BEMBB |
| Categorie | Fornuis |
| Taal | Nederlands |
| Grootte | 22129 MB |







