Handleiding
Je bekijkt pagina 40 van 48

16 49-80783-6
PREPARACIÓN PARA LA INSTALACIÓN
Preparación para la instalación
2
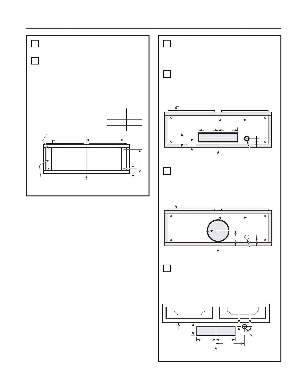
PREPARACIÓN DEL MONTAJE
(Cont.)
B
Para instalar la parte inferior del
gabinete
Use el diagrama o la campana como plantilla y
marque las ubicaciones sobre el gabinete para los
tornillos de la cerradura.
Coloque los 4 tornillos (F) hasta la mitad en la parte
inferior del gabinete (o las cuñas de madera).
3
PREPARACIÓN PARA LA
ELECTRICIDAD Y LA VENTILACIÓN
Seleccione la opción de ventilación que su
instalación requiere y siga con esa sección:
A
Escape superior exterior
(ducto vertical rectangular–3
1
»4” x 10”)
• Use el diagrama como plantilla y marque las
ubicaciones del gabinete para el conducto y el
cableado eléctrico.
B
Escape superior exterior
(ducto vertical circular–7”)
• Use el diagrama como plantilla y marque las
ubicaciones del gabinete para el conducto y el
cableado eléctrico.
C
Escape posterior exterior
(ducto horizontal rectangular–3
1
»4” x 10”)
• Use el diagrama como plantilla y marque las
ubicaciones del gabinete para el conducto y el
cableado eléctrico.
Línea central
Orificio para
acceso eléctrico
(en la pared)
Frente del gabinete
Fondo de
gabinete
7
1
»2”
ø1
1
»4”
3
»4”
5
1
»4” 5
1
»4”
3
»4”
4
1
»4”
Línea central
Orificio para acceso
eléctrico (en el fondo
del gabinete)
Frente del gabinete
Fondo de gabinete
7
1
»2”
ø1
1
»4”
3
»4”
Orificio de acceso
para el ducto
circular de 7”
Orificio
de 8”
de día.
4
1
»4”
Línea central
Orificio para acceso
eléctrico (en el
fondo del gabinete)
Frente del gabinete
Fondo de gabinete
Orificio de acceso para
el ducto vertical
5
1
»4” 5
1
»4”
7
1
»2”
ø1
1
»4”
4”
1
»2”
3
»4”
Cuñas de madera
(para gabinetes con
muesca en el fondo)
Línea
central
Fondo de gabinete
Frente del
gabinete
2
1
»2”
10
1
»4”
X
Tornillos para instalar
la campana (4)
Gabinete X
24” 10
3
»4”
30” 13
3
»4”
36” 16
3
»4”
Bekijk gratis de handleiding van GE JVX5300EJES, stel vragen en lees de antwoorden op veelvoorkomende problemen, of gebruik onze assistent om sneller informatie in de handleiding te vinden of uitleg te krijgen over specifieke functies.
Productinformatie
| Merk | GE |
| Model | JVX5300EJES |
| Categorie | Afzuigkap |
| Taal | Nederlands |
| Grootte | 5138 MB |




