Handleiding
Je bekijkt pagina 28 van 68

49-1000478 Rev. 6
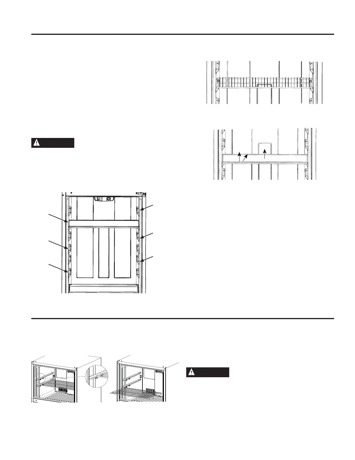
Clayettes du compartiment réfrigérateur
UTILISATION DU RÉFRIGÉRATEUR: &OD\HWWHV
Clayettes du compartiment congélateur
Lorsqu’elles sont placées correctement sur leurs supports, les
clayettes fixes se bloqueront avant de sortir complètement du
congélateur et elles ne pencheront pas si vous y placez ou
retirez des aliments.
&HUWDLQVPRGqOHVVRQWGRWpVGHWDEOHWWHVHQYHUUH
Pour vous assurer que la tablette fonctionne comme prévu,
glissez-la jusqu’au point de rétention le plus à l’arrière
:
7DEOHWWHHQYHUUH±)HQWHDYDQW
7DEOHWWHHQEURFKHFOD\HWWH±)HQWHDUULqUH
ATTENTION
Ne nettoyez pas les tablettes ou couvercles
en verre avec de l’eau chaude lorsqu’ils sont froids. Les
tablettes et couvercles en verre peuvent se briser s’ils sont
exposés à une variation de température soudaine, ou soumis à
un impact s’ils sont heurtés ou échappés. S’il se brise, le verre
trempé est conçu pour se fracturer en un grand nombre de
petits éclats.
/HVFOD\HWWHVVHSODFHQWjGLIIpUHQWVQLYHDX[YRXVSHUPHWWDQWGHSHUVRQQDOLVHUO¶HVSDFHGHUDQJHPHQW7RXWHVOHVFDUDFWpULVWLTXHV
ne sont pas disponibles sur tous les modèles.
Clayettes pleine largeur
Quelques modèles sont équipés de tablettes en verre trempé
fixes ou de tablettes fixes bimétalliques. Vous pouvez déplacer
ces clayettes à un autre endroit du compartiment réfrigérateur.
&HUWDLQVPRGqOHVSRVVqGHQWXQHFOD\HWWHFRXOLVVDQWH
métallique, une clayette en verre trempée fixe, une clayette
anti-déversement ou deux clayettes fixes métalliques.
7LUH]OHVWDEOHWWHVGHYHUUHYHUVO¶DYDQWGHIDoRQTXHOHYHUUH
repose également sur les rails latéraux. Pour les unités
avec tablettes de verre, les positions de rail 2 et 4/5 sont
recommandées.
ATTENTION
Ne nettoyez pas les clayettes ou les
couvercles en verre avec de l’eau tiède quand ceux-ci sont
froids. Les clayettes et couvercles en verre peuvent se casser
s’ils sont exposés à des changements soudains de
température ou si vous les cognez ou les faites tomber. Le
verre trempé est conçu pour se briser en petits morceaux en
cas de casse.
&OD\HWWH6RXOHYH]O¶H[WUpPLWpDUULqUHHWWLUH]YHUV
l'avant pour la retirer.
&OD\HWWHHQYHUUH6RXOHYH]OHERUGDYDQWSRXVVH]
la tablette vers l’arrière (2), soulevez la tablette vers le
haut et tirez vers l'avant (3) pour la retirer.
Position
Ferroviaire 1
Position
Ferroviaire 2
Position
Ferroviaire 3
Position
Ferroviaire 4
Position
Ferroviaire 5
Position
)HUURYLDLUH
1
2
3
1
2
Bekijk gratis de handleiding van GE GTE18GMNRSL, stel vragen en lees de antwoorden op veelvoorkomende problemen, of gebruik onze assistent om sneller informatie in de handleiding te vinden of uitleg te krijgen over specifieke functies.
Productinformatie
Merk | GE |
Model | GTE18GMNRSL |
Categorie | Koelkast |
Taal | Nederlands |
Grootte | 9623 MB |