Gasmate Galaxy BQ1193 handleiding
Handleiding
Je bekijkt pagina 15 van 24

1514
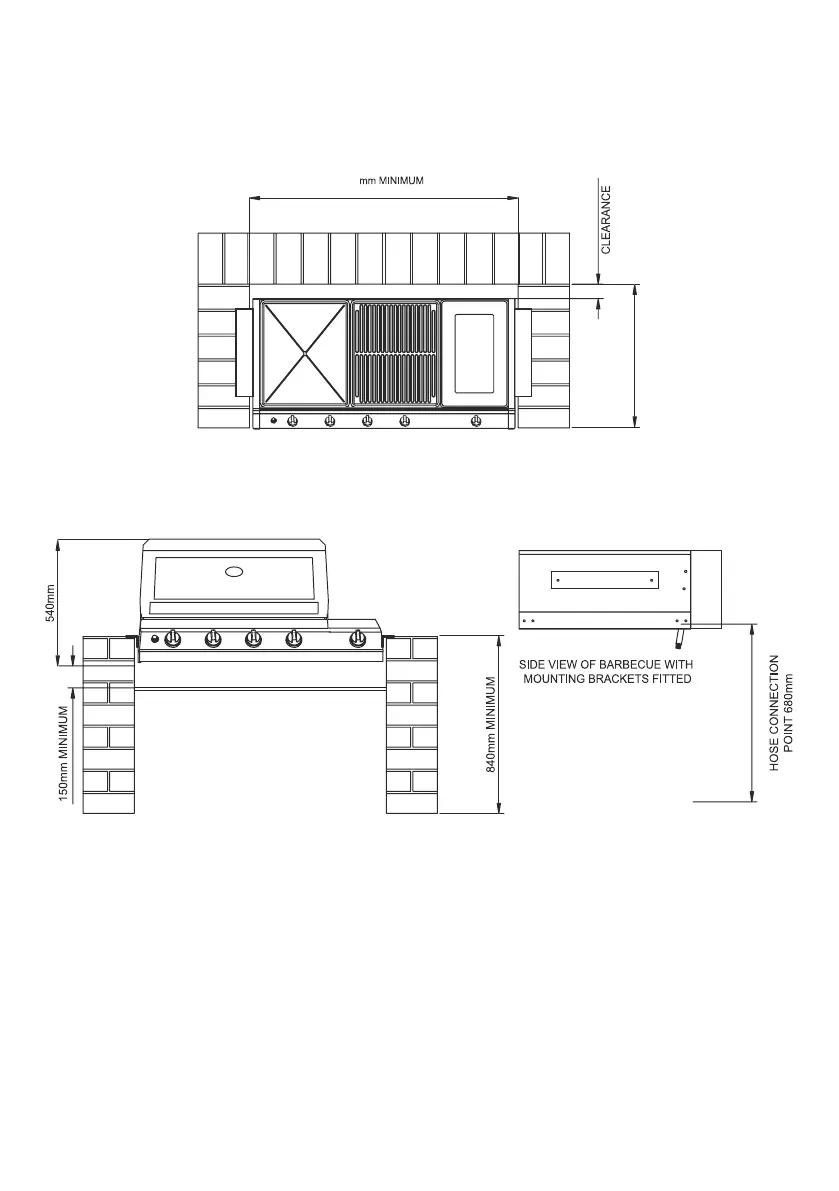
BUILT-IN BBQ DIMENSIONS
1488
(BQ1090B)
770mm MINIMUM
GAS CYLINDER NOT TO
BE INSTALLED UNDERNEATH
150mm MINIMUM
NOTE: TO BE INSTALLED BY AN AUTHORISED PERSON. PLEASE NOTE: MINIMUM CLEARANCE
TO COMBUSTIBLES UNDER FAT TRAY IS 150mm. THE MATERIAL FOR THE CABINET (ISLAND)
MUST NOT BE COMBUSTIBLE.
Bekijk gratis de handleiding van Gasmate Galaxy BQ1193, stel vragen en lees de antwoorden op veelvoorkomende problemen, of gebruik onze assistent om sneller informatie in de handleiding te vinden of uitleg te krijgen over specifieke functies.
Productinformatie
| Merk | Gasmate |
| Model | Galaxy BQ1193 |
| Categorie | Niet gecategoriseerd |
| Taal | Nederlands |
| Grootte | 3653 MB |