Fulgor Milano CPH 905 GWK handleiding
Handleiding
Je bekijkt pagina 29 van 52

28 29
DE
I
nstallation
Dieses Gerät ist mit einer Vorrichtung zur Beseitigung
der Verbrennungsgase nicht angeschlossen. Installation
und Anschluß müssen laut den geltenden Vorschriften
ausgefürt werden. Gerät nur in ausreichend belüfteten
Räumen und nach den gesetzlichen Vorschriften aufstellen.
Die Menge der benötigten Verbrennungsluft darf nicht unter
2,0 m
3
/h pro installierte kW-Leistungseinheit liegen. Siehe
Heizleistungstabelle.
Bitte beachten
Das Gerät ist in Installationsklasse 3.
Die Einstellungsbedingungen des Geräts sind auf dem
Kennschild auf der Umhausung aufgeführt.
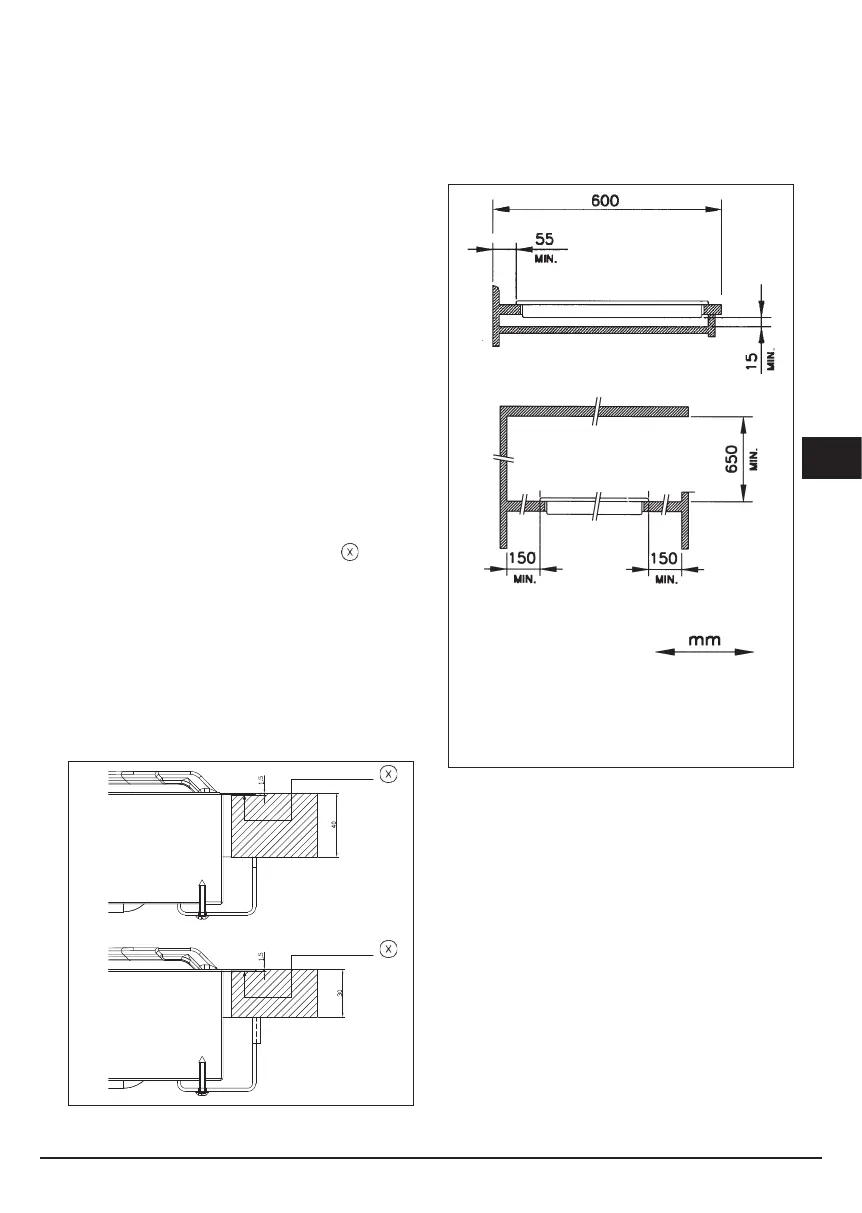
Aufstellung
(Abb. 2)
Das Gerät ist für den Einbau in eine Arbeitsfläche
vorgesehen, wie in der entsprechenden Abbildung zu
sehen.
Vor dem Einsetzen der Mulde die Dichtung
auf dem
gesamten Umfang der Einbauöffnung anbringen. Die
Einbaumaße sind in den Abbildungen 6-7-8-9 zu sehen.
Bei den Modellen Filotop (die also bündig zur
Arbeitsfläche eingebaut werden), muss der Außenrand
der Einbauöffnung um 1,5 mm tiefer gelegt werden.
Bei den Modellen Semifilotop (leicht überstehend) muss
diese Fräsung nicht ausgeführt werden.
Der Einbau kann in verschiedene Werkstoffe erfolgen
wie Stahl, Marmor, Verbundstoffe, Synthetikmaterialien,
Holz und mit Kunststofflaminat beschichtetes Holz,
wenn diese Temperaturen von 90°C standhalten.
Abb. 2
Unter der Platte mus eine Tafel aus Holz oder
anderem dämmenden Material eingebaut werden,
die in einem Mindestabstand von 15 mm von der
Muldenhülle positioniert wird.
Anleitungen für den Installateur
Abb. 2
DICHTUNGEN
DICHTUNGEN
Bekijk gratis de handleiding van Fulgor Milano CPH 905 GWK, stel vragen en lees de antwoorden op veelvoorkomende problemen, of gebruik onze assistent om sneller informatie in de handleiding te vinden of uitleg te krijgen over specifieke functies.
Productinformatie
| Merk | Fulgor Milano |
| Model | CPH 905 GWK |
| Categorie | Fornuis |
| Taal | Nederlands |
| Grootte | 4692 MB |







