Fulgor Milano CPH 765 GWK handleiding
Handleiding
Je bekijkt pagina 45 van 52

44 45
PT
Instalação
Este aparelho não possui um dispositivo de descarga do
produto da combustâo. Recomenda-se por conseguinte,
que venha instalado em lugares suficientemente arejados
segundo as disposições das leis em vigor. A quantidade
necessária de ar para a combustão, não deverá ser inferior
a 2.0 m
3
/h por cada kW de força instalada. Veja a tabela
relativa à força dos queimadores.
NOTA
O aparelho pertence à classe 3 de instalação. As
condições de regulação do aparelho são indicadas na
placa de dados aplicada ao cárter.
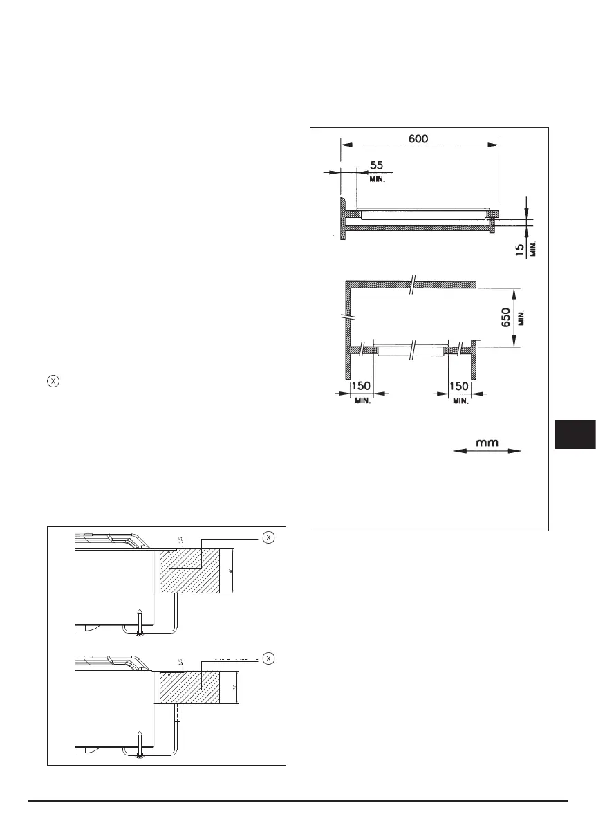
Posicionamento (Fig. 5)
O aparelho está previsto para ser encaixado num plano
de trabalho como ilustrado na respectiva figura. Antes
de introduzir o plano prepare a guarnição de vedação
ao redor de todo o perímetro da abertura do encaixe.
As medidas de encaixe estão indicadas nas figuras 6-7-
8-9.
Para os modelos Filotop é necessário realizar um
abaixamento na zona perimetral da abertura de encaixe
por uma profundidade de 1,5 mm.
Para os modelos Semifilotop esse abaixamento não
deve ser realizado.
A instalação pode ser realizada em vários materiais,
tais como em aço, mármore, conglomerados, sintéticos,
madeira e madeira revestida com laminados plásticos,
sempre que resistentes a uma temperatura de 90°C.
Fig. 2
Sob o painel deve ser instalado um painel de
madeira ou outro material isolante, posicionado a
uma distância mínima de 15 mm do invólucro do
plano.
Instruções para o instalador
Fig. 2
GUARNIÇÃO SELANTE
GUARNIÇÃO SELANTE
Bekijk gratis de handleiding van Fulgor Milano CPH 765 GWK, stel vragen en lees de antwoorden op veelvoorkomende problemen, of gebruik onze assistent om sneller informatie in de handleiding te vinden of uitleg te krijgen over specifieke functies.
Productinformatie
| Merk | Fulgor Milano |
| Model | CPH 765 GWK |
| Categorie | Fornuis |
| Taal | Nederlands |
| Grootte | 4692 MB |







