Fulgor Milano CPH 765 GWK handleiding
Handleiding
Je bekijkt pagina 37 van 52

36 37
ES
Instalación
Este aparato no tiene un dispositivo de descarga de los
productos de la combustión. Se aconseja instalarlo en
locales suficientemente aireados según las disposiciones
de ley vigentes. La cantidad de aire necesaria a la
combustión no tiene que ser menos que 2.0 m
3
/h por
cada kW de potencia instalado. Véase tabla potencias
quemadores.
N.B.
El aparato pertenece a la clase 3 de instalación.
Las condiciones de regulación del aparato se indican en
la placa de características situada en el cárter.
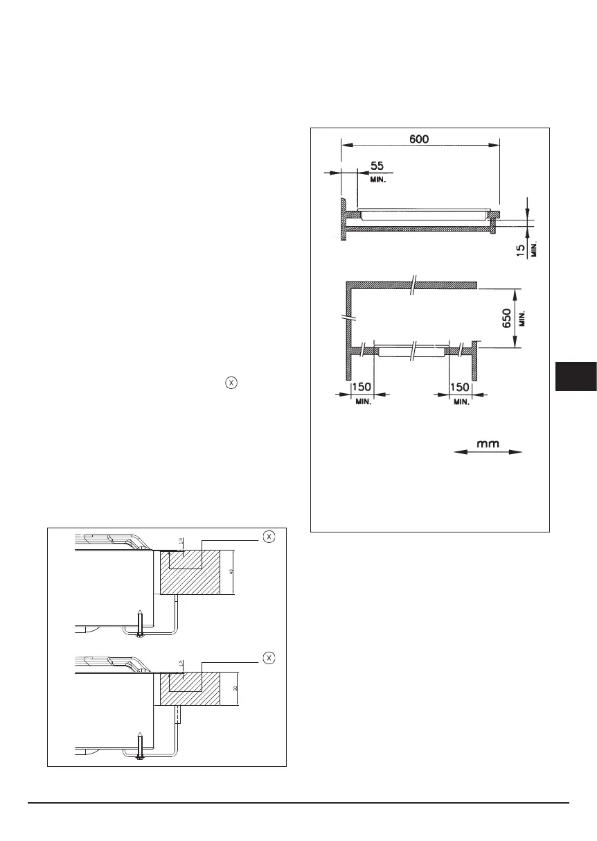
Colocación (Fig. 2)
El aparato está preparado para ser empotrado en
una mesa de trabajo tal como se ilustra en la figura
correspondiente.
Antes de introducir la placa de cocción es necesario
preparar la guarnición de estanqueidad en todo el
perímetro de la perforación del empotrado.
Las medidas de empotrado aparecen en las figuras 6-7-
8-9. Para los modelos Filotop es necesario efectuar una
reducción en altura en la zona perimetral del orificio de
empotrado de 1,5 mm de profundidad. Para los modelos
Semifilotop este fresado no de tiene que efectuar.
La instalación se puede realizar sobre materiales
distintos como acero, mármol, conglomerados,
sintéticos, madera y madera revestida con laminados
de plástico, siempre que sean resistentes a una
temperatura de 90°C.
Fig. 2
Debajo del panel se tiene que instalar un panel de
madera u otro material aislante, colocado a una
distancia mínima de 15 mm del envase de la placa.
Instrucciones para el instalador
Fig. 2
GUARNICIÓN SELLADOR
GUARNICIÓN SELLADOR
Bekijk gratis de handleiding van Fulgor Milano CPH 765 GWK, stel vragen en lees de antwoorden op veelvoorkomende problemen, of gebruik onze assistent om sneller informatie in de handleiding te vinden of uitleg te krijgen over specifieke functies.
Productinformatie
| Merk | Fulgor Milano |
| Model | CPH 765 GWK |
| Categorie | Fornuis |
| Taal | Nederlands |
| Grootte | 4692 MB |







