Handleiding
Je bekijkt pagina 10 van 51

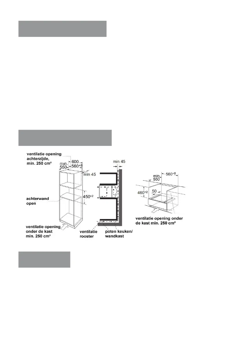
Inbouwrichtlijnen
lnstallatie afmetingen
Opmerking: Er moet ook een opening aan de bovenzijde van de kast (45mm) vrij blijven.
Inbouwen
•
Til en/of draag het toestel niet aan de handgreep. Deze is niet gemaakt om het
gewicht van de oven te dragen en kan mogelijk afbreken.
1. Duw de oven met beleid in de hiervoor bestemde ruimte
Zorg dat de oven gecentreerd staat.
2. Open de ovendeur en zet de oven vast m.b.v. de meegeleverde schroeven in de
voorzijde van de deurstijlen. (zie afb. volgende pagina)
•
Dit toestel is bedoeld om vast in een keuken
blok
in te bouwen.
• Er mag geen achterwand achter de locatie waar de oven wordt geplaatst, zitten.
• Er moet rondom het toestel een min. ruimte van 45 mm worden vrijgehouden tot
de begrenzende kastdelen en achtermuur. (zie afb. hieronder)
• De vaste wandkast dient onderin aan de voorzijde een ventilatie opening
van 250 cm² te hebben. Om dit te realiseren, zaag een opening in de
schopplaat en/of plaats een ventilatierooster.
• Ventilatie spleten en -roosters mogen niet afgedekt worden.
Uw veiligheid en het correct werken van het toestel kan alleen worden
gegarandeerd wanneer het toestel is geïnstalleerd volgens deze richtlijnen.
• De installateur is aansprakelijk voor alle schade voortkomend uit onjuiste
installatie.
• De wandkast waarin de oven wordt geïnstalleerd, dient hittebestendig te
zijn tot tenminste 90˚C.
HAMBURG5035STGBL pagina 9 versie NL 6-2024
• Niet in een keukenkastje of op het werkblad gebruiken!
Bekijk gratis de handleiding van Frilec HAMBURG5035STGBL, stel vragen en lees de antwoorden op veelvoorkomende problemen, of gebruik onze assistent om sneller informatie in de handleiding te vinden of uitleg te krijgen over specifieke functies.
Productinformatie
Merk | Frilec |
Model | HAMBURG5035STGBL |
Categorie | Oven |
Taal | Nederlands |
Grootte | 6066 MB |