Frigidaire UMV1422WH handleiding
Handleiding
Je bekijkt pagina 50 van 76

Impreso en China
"2
/
1-4
3/8"
3/8"
13-3/8"
8-1/4"
2"
12-1/2"
6-1/4"
"23/72-9
"4/1-4
3/8"
13-3/8"
3/8" HASTA EL EXTREMO
ANCHO MÍNIMO DE 30" REQUERIDO
Corte la plantilla ubicada en la pared de atrás a través de la linea de puntos.
Corte la plantilla ubicada en la pared de atrás a través de la linea de puntos.
CORTE EL AGUJERO A TRAVÉS DE LA PARED POSTERIOR PARA EL ADAPTADOR DE ESCAPE
12"
4"
Turn over for English
Parte N°: 316902476
Parte N°: 316902475
NOTA: ES MUY IMPORTANTE LEER Y SEGUIR LAS
DIRECCIONES EN LAS INSTRUCCIONES DE INSTALACIÓN
ANTES DE PROCEDER CON ESTA PLANTILLA DE PARED
POSTERIOR.
Esta plantilla de la pared posterior sirve para colocar el plato de montaje
inferior y para colocar la salida de escape horizontal.
1. Use un nivel para cerciorarse de que la plantilla está colocada de
manera apropiada.
2. Localice y marque por lo menos un bajante en el lado izquierdo o
derecho de la línea central.
NOTA:
Es importante usar por lo menos un tornillo de madera microondas.
Marque dos lugares adicionales, espaciados uniformemente, para los
tornillos de palanca proporcionados.
3. Taladre agujeros en los lugares marcados. Donde exista un bajante,
taladre agujeros de 3/16" para los tornillos de madera. Para los
agujeros que no se alinean con el bajante, taladre agujeros de 5/8"
para los tornillos de palanca.
NOTA:
NO INSTALE EL PLATO DE MONTAJE EN ESTE MOMENTO.
4. Remueva la plantilla de la pared posterior.
5. Revise el Manual de instrucciones de instalación para su situación de
instalación
.
Localice y marquee los agujeros para que se alineen con los
agujeros en el plato de montaje.
IMPORTANTE:
LOCALICE POR LO MENOS UN BAJANTE EN CUALQUIERA DE LOS
LADOS DE LA LINEA CENTRAL.
MARQUE DOS LUGARES ADICIONALES, ESPACIADOS
UNIFORMEMENTE, PARA LOS TORNILLOS DE PALANCA EN EL ÁREA
DEL PLATO DE MONTAJE.
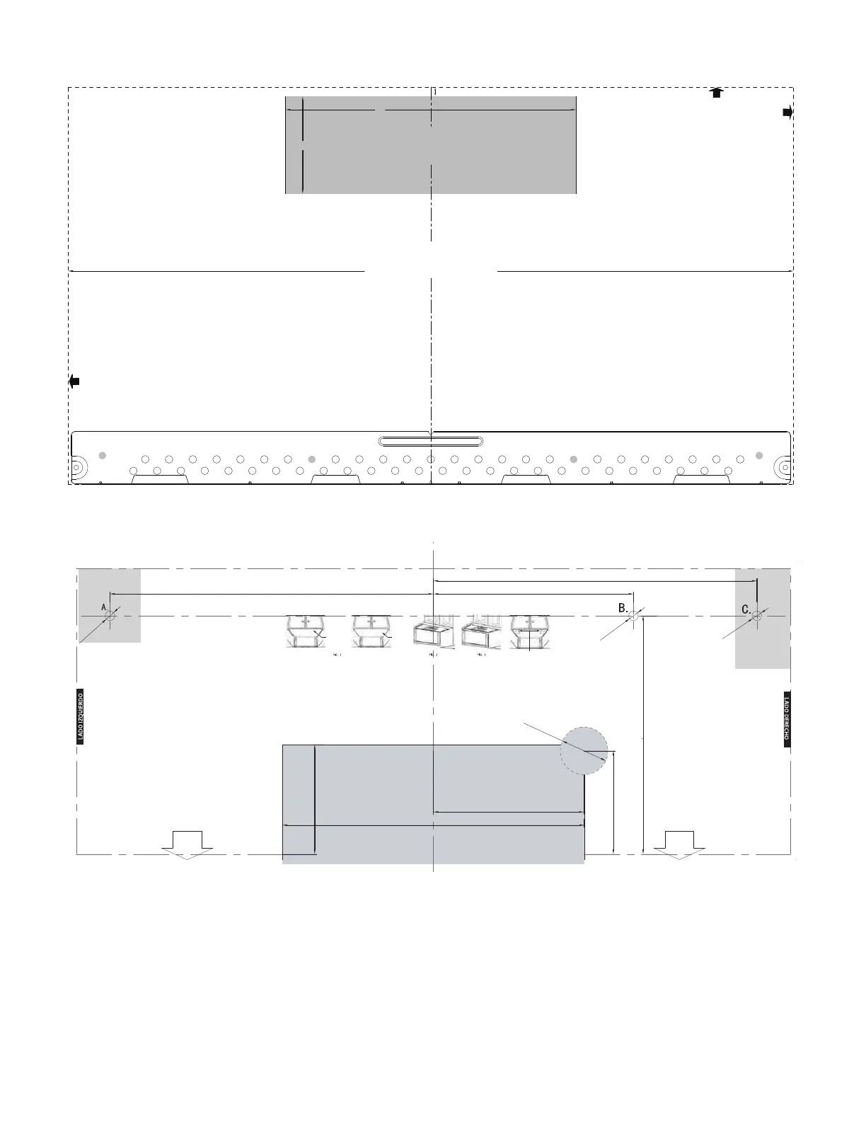
F. CORTE PARA EL ESCAPE
HORIZONTAL EXTERNO
PRECAUCIÓN-SI EL ADAPTADOR DE ESCAPE ESTÁ COLOCADO MÁS ALLÁ DE
LAS DIMENSIONES RECOMENDADAS, AIRE CARGADO CON GRASA SE
DESCARGARÁ HACIA LA ESTRUCTURA DE LA CASA.
Localice y marquee los agujeros para que se alineen con los
agujeros en el plato de montaje.
IMPORTANTE:
LOCALICE POR LO MENOS UN BAJANTE EN CUALQUIERA DE LOS
LADOS DE LA LINEA CENTRAL.
MARQUE DOS LUGARES ADICIONALES, ESPACIADOS
UNIFORMEMENTE, PARA LOS TORNILLOS DE PALANCA EN EL ÁREA
DEL PLATO DE MONTAJE.
1. Determine qué tipo de área tiene la superficie
inferior del gabinete: hueca o lisa/plana. Vea
la figura 1. Si se trata de una superficie
inferior lisa, adhiera con cinta la plantilla a
dicha superficie (figura 2). Si se trata de una
superficie hueca, corte los bordes de la
plantilla para que se ajusten a la superficie
inferior hueca del gabinete. Es importante que
los bordes de los gabinetes permitan una
instalación nivelada del horno.
NOTA: En el caso de algunos gabinetes a
veces existe un pequeño soporte o bloque
pegado entre la parte saliente y la parte
inferior de la superficie inferior del gabinete.
Corte la plantilla para que
se ajuste al soporte o el bloque, a fin de que
la plantilla quede lisa y a ras contra la
superficie inferior del gabinete.
Adhiera con cinta la plantilla para el gabinete
superior a la parte inferior del gabinete en el
área hueca (figura 3).
NOTA: Tras cortar los bordes de la plantilla,
asegurese de que la parte trasera de la
plantilla toque la pared trasera (en el caso de
gabinetes con superficie inferior lisa/plana) o
la parte trasera de la superficie hueca (en el
caso de gabinetes con superficie inferior
hueca).
NOTA: ES MUY IMPORTANTE LEER Y SEGUIR LAS INSTRUCCIONES
DE INSTALACIÓN ANTES DE PROCEDER A USAR ESTA PLANTILLA
PARA EL GABINETE SUPERIOR.
Esta plantilla se usa para ubicar el agujero a traves del cu al pasará el cable eléctrico, los
agujeros para la instalación en el gabinete y el hueco para la salida de extracción vertical.
2. Taladre agujeros con diámetro de 3/8" en A., 8. y
C.
PRECAUCIÓN: cuando taladre los agujeros en la
superficie inferior del gabinete, use gafas
protectoras.
3. Realice el corte para el agujero (hueco) con
diámetro de 2"en D. para el cable eléctrico. Si el
gabinete es metálico, use una moldura aislante de
nylon alrededor del agujero para el cable
eléctrico, a fin de evitar cortes en el cable (consulte
la sección de piezas incluidas del Manual de
instrucciones de instalación).
4. (SOLAMENTE PARA EXTRACCIÓN VERTICAL) Corte
el área sombreada E. a traves de la superficie
inferior del gabinete, para la ubicación de la
salida de extracción vertical (externa).
5. Retire la plantilla para el gabinete superior.
6. En el caso de gabinetes con superficie inferior
hueca, confeccione 2 bloques de relleno con
madera sobrante, del tamano de las áreas
sombreadas F y G.
Dichos bloques de relleno deben tener un espesor
igual a la profundidad del hueco del gabinete.
Taladre agujeros con un diámetro de 1/2" en
dichos bloques, para alinearlos con A. y C. Coloque
los bloques de manera que los agujeros en cada
bloque queden alineados con los correspondientes
agujeros en el gabinete. Los bloques de relleno
deben quedar al mismo nivel que el borde inferior
del marco del gabinete en la pared (figura 4).
7. PROSIGA CON LAS INSTRUCCIONES DE
INSTALACIÓN.
PLANTILLA PARA EL GABINETE SUPERIOR
E. HUECO PARA EXTRACCIÓN VERTICAL
(EXTERNA) SOLAMENTE
CORTE EL AGUJERO A TRAVES DEL ADAPTADOR DE EXTRACCIÓN PARA LA SUPERFICIE INFERIOR DEL GABINETE
DIAMETRO DE TALADRO 2"
D. CABLE ELÉCTRICO
DIÁMETRO DE TALADRO 3/8"
GABINETE SUPERIOR
BLOQUES DE RELLENO
FIG. 4
GABINETE SUPERIOR
GABINETE SUPERIOR
GABINETE SUPERIORGABINETE SUPERIOR
Parte inferior
procesada del
gabinete
Gabinete con
parte inferior
lisa
G. ÁREA DEL BLOQUE
DE RELLENO
DIAMETRO DE
TALADRO 3/8"
Pared
Pared
DIAMETRO DE
TALADRO 3/8"
F. ÁREA DEL BLOQUE
DE RELLENO
SP-25
Bekijk gratis de handleiding van Frigidaire UMV1422WH, stel vragen en lees de antwoorden op veelvoorkomende problemen, of gebruik onze assistent om sneller informatie in de handleiding te vinden of uitleg te krijgen over specifieke functies.
Productinformatie
Merk | Frigidaire |
Model | UMV1422WH |
Categorie | Magnetron |
Taal | Nederlands |
Grootte | 14507 MB |