Frigidaire FCVW3662SS handleiding
Handleiding
Je bekijkt pagina 45 van 56

45
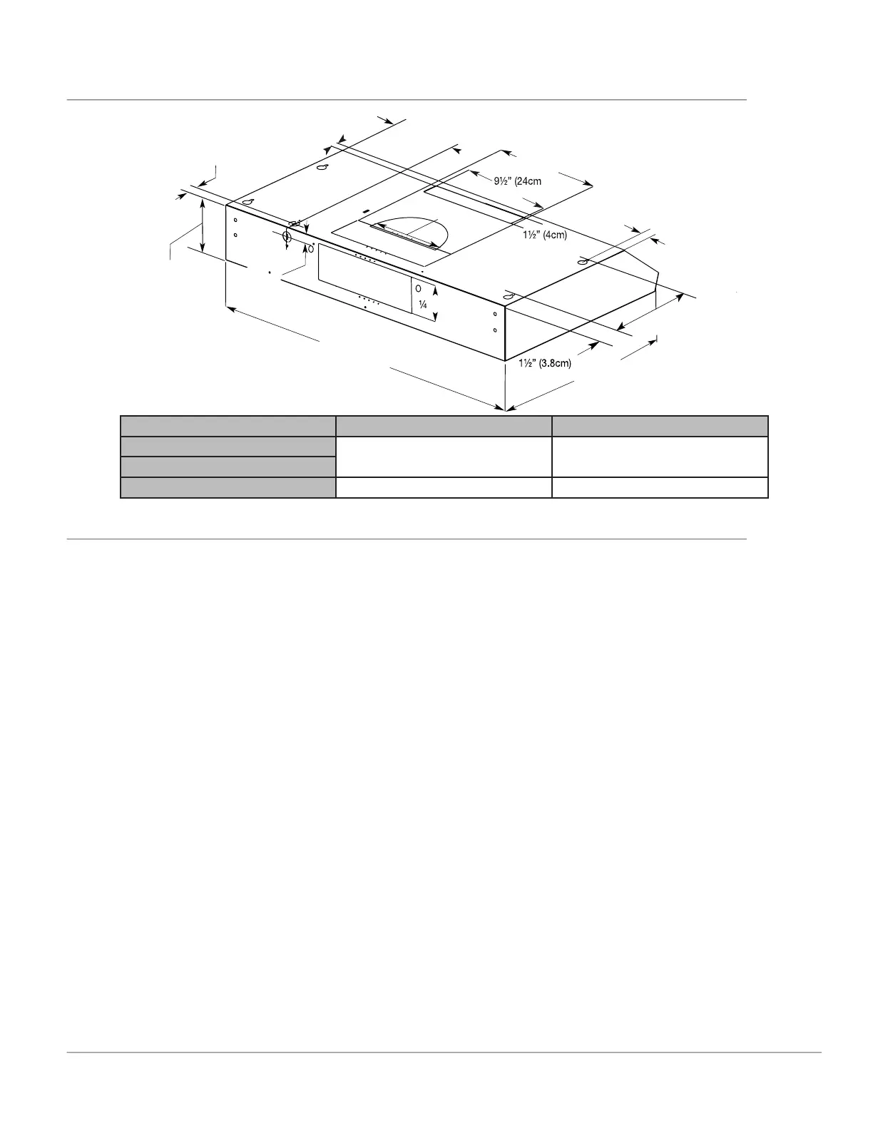
DIMENSIONES DEL PRODUCTO
3
”( 8
.25
c
m
)
10” (25.4cm
)
1” (2.5cm)
9” (22.9cm)
ambos lados
ambos lados
19
3
/
4
”
(50.2cm)
7
/
8
”
(2.2cm)
7
/
8
”
(2.2cm)
4
15
/
16
”
(12.5cm)
ambos lados
cubierta recirculante
cubierta recirculante
7” (17.8cm
)
9
/
16
”
(1.4cm)
Dim A
Dim B
Dim A Dim B
FCVW3062AS
30” (76.2 cm) 6 /” (16.7 cm)
FCVW3062AD
FCVW3662AS 36” (91.4 cm) 9 /” (24.3 cm)
REQUISITOS DE VENTILACIÓN
• El sistema de ventilación debe terminar en
el exterior, excepto para las instalaciones sin
ducto de escape (con recirculación).
• No dirija la salida del sistema de ventilación
hacia el desván u otra área cerrada.
• No utilice una cubierta de pared de tipo para
lavandería de 4” (10,2 cm).
• Use un ducto de escape de metal rectangular
de 3¼” x 10” (8,3 x 25,4 cm) o redondo
metálico de 7” (17.8 cm), según los requisitos
para su instalación. Se recomienda un ducto
de escape de metal rígido. No se recomienda
ducto de escape de plástico u hoja metálica.
• El largo del sistema de ventilación y el número
de codos se deben mantener al mínimo para
proveer un funcionamiento eficaz. Para obtener
el funcionamiento más eficaz y silencioso:
• No use más de 3 codos de 90°.
• Asegúrese de que haya un mínimo de 24” (61
cm) de ducto de escape recto entre los codos,
si se utiliza más de 1 codo.
• No instale 2 codos lado a lado.
• Use abrazaderas o cinta para ductos para sellar
todas las juntas en el sistema de ventilación.
• El sistema de ventilación debe tener una válvula
de contratiro en la salida.
• Utilice pasta resanadora para sellar la abertura
exterior de pared o techo alrededor de la cubierta.
• El mejor rendimiento es alcanzado con un
sistema de ventilación recto sin codos y usando
ductos lisos.
• Longitud equivalente calculada del sistema de
ductos: 35 ft (10.7m) y ductos circulares de 50
ft (15.2 m).
Instalaciones en climas fríos
Como parte del sistema de ventilación, se deberá
instalar una compuerta de contratiro adicional
para minimizar el flujo de aire frío hacia atrás, y un
dispositivo de interrupción térmico para minimizar
la conducción de las temperaturas exteriores. La
compuerta deberá estar en el lado del aire frío del
dispositivo de interrupción térmico.
El dispositivo de interrupción deberá estar lo
más cerca posible del lugar donde el sistema de
ventilación entra a la parte con calefacción de la casa.
Aire de complemento
Los códigos locales de construcción podrían requerir
el uso de sistemas de aire de complemento, en el
caso de que se usen sistemas de ventilación con un
movimiento de aire mayor a los CFM (pies cúbicos
por minuto) especificados.
Bekijk gratis de handleiding van Frigidaire FCVW3662SS, stel vragen en lees de antwoorden op veelvoorkomende problemen, of gebruik onze assistent om sneller informatie in de handleiding te vinden of uitleg te krijgen over specifieke functies.
Productinformatie
| Merk | Frigidaire |
| Model | FCVW3662SS |
| Categorie | Afzuigkap |
| Taal | Nederlands |
| Grootte | 6901 MB |







