Frigidaire FCVW3652SS handleiding
Handleiding
Je bekijkt pagina 29 van 56

29
PRÉPARATION DE L’EMPLACEMENT
NOTE
Avant d’eectuer des découpes,
assurez-vous que le plafond ou le mur
est susamment dégagé.
1. Débranchez l’alimentation électrique.
2. Choisissez une surface plane pour assembler la
hotte. Placez un revêtement sur cette surface.
3. Soulever la hotte et la poser à l’envers sur la
surface couverte.
4. Si le fond du placard forme une cavité, ajouter
des tringles d’appui en bois de chaque côté.
Installer les vis pour fixer les tringles d’appui
aux emplacements indiqués.
Mur
fond de l'armoire
3î ( 7.6 cm)
3î ( 7.6 cm)
A. 4 vis ˆ bois ˆ t te plate
avec rondelles et Žcrous
AA
bandes de remplissage en bois
(fonds d'armoires encastrŽs uniquement)
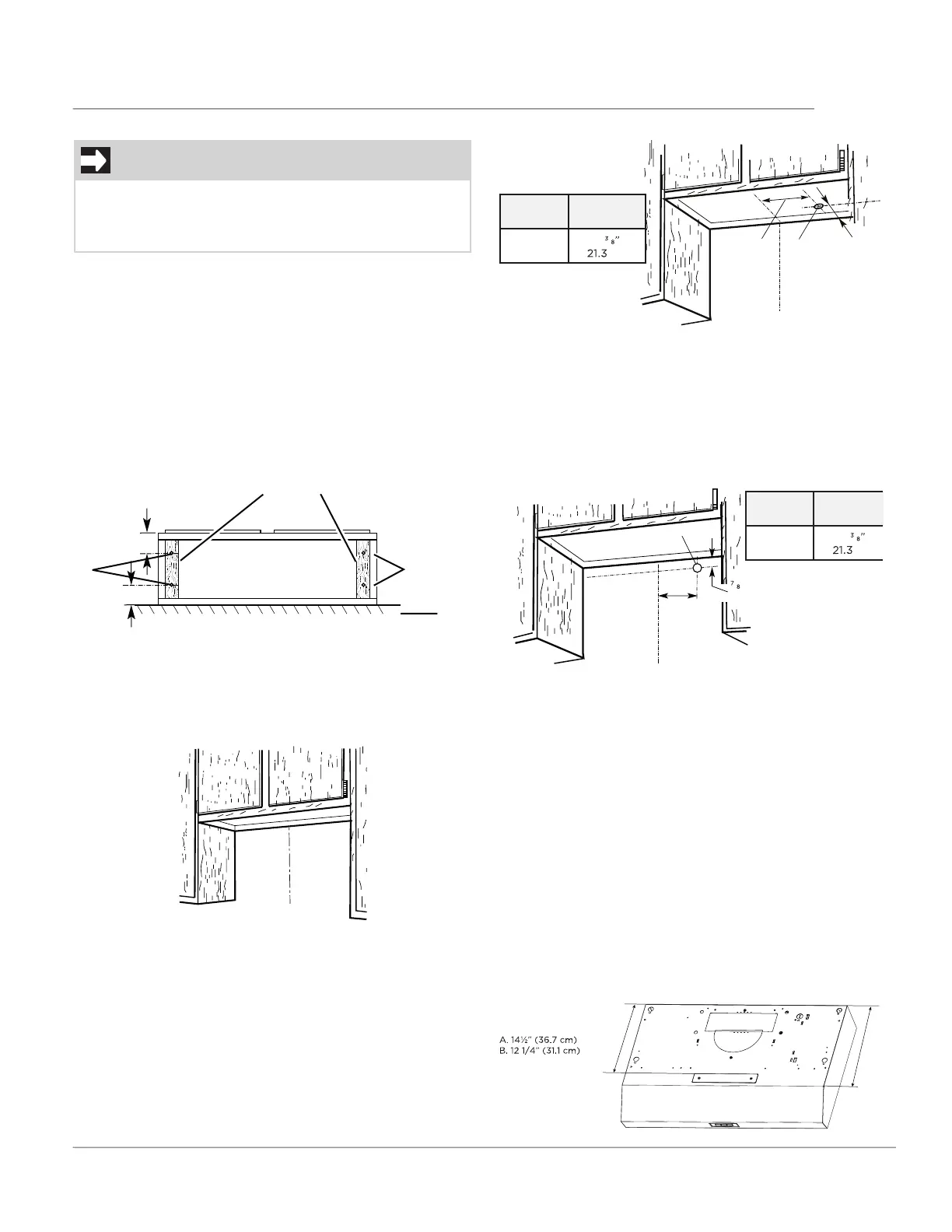
Déterminer l’emplacement des trous de câblage
1. Déterminez et marquez clairement une ligne
médiane verticale sur le mur et le fond du
meuble.
Axe central
Pour passer le fil par le haut:
2. Tracez une ligne de distance (A) à partir de
la droite de l’axe central sur le dessous de
l’armoire. Marquez le point de cette ligne qui se
trouve à 5,08 cm (2”) du mur arrière. Percez un
trou de 1¼” (3,2 cm) de diamètre (B) à travers
l’armoire à cet endroit.
Modèle
de hotte
Dim A
30” & 36”
8
/
( cm)
A
Axe central
B
2” (5.0
8 cm)
à partir du mur,
et non du cadre
de l'armoire
Pour le câblage à travers le mur :
1. Tracez une ligne de distance (A) à partir de la
droite de l’axe central sur le dessous du mur.
Marquez le point de cette ligne qui se trouve à
7⁄8” (2,2 cm) du dessous de l’armoire. Percez
un trou de 1¼” (3,2 cm) de diamètre (B) à
travers la paroi arrière à cet endroit.
Axe central
A
B
Dim A
30” & 36”
8
/
( cm)
/ ”
(2.2 cm)
Modèle
de hotte
VENTILATION
Choisissez l’évacuation des gaz d’échappement
parmi les options énumérées ci-dessous :
Style 1 - Version avec hotte à recirculation
Pour cette installation, passez à la section
“Installation de la hotte de cuisine (version à
recyclage)” à la page 15.
NOTE: Pour les installations dont l’évacuation se
fait par le toit ou le mur, le couvercle de l’évent de
recirculation doit rester en place.
NOTE: Pensez à utiliser la mesure A pour la
transition ronde de 7” (17,8 cm) et la mesure B pour
le système de recirculation sur les dimensions de
votre armoire.
A.
B.
Bekijk gratis de handleiding van Frigidaire FCVW3652SS, stel vragen en lees de antwoorden op veelvoorkomende problemen, of gebruik onze assistent om sneller informatie in de handleiding te vinden of uitleg te krijgen over specifieke functies.
Productinformatie
| Merk | Frigidaire |
| Model | FCVW3652SS |
| Categorie | Afzuigkap |
| Taal | Nederlands |
| Grootte | 6775 MB |







