Frigidaire FCVW3052WH handleiding
Handleiding
Je bekijkt pagina 9 van 56

9
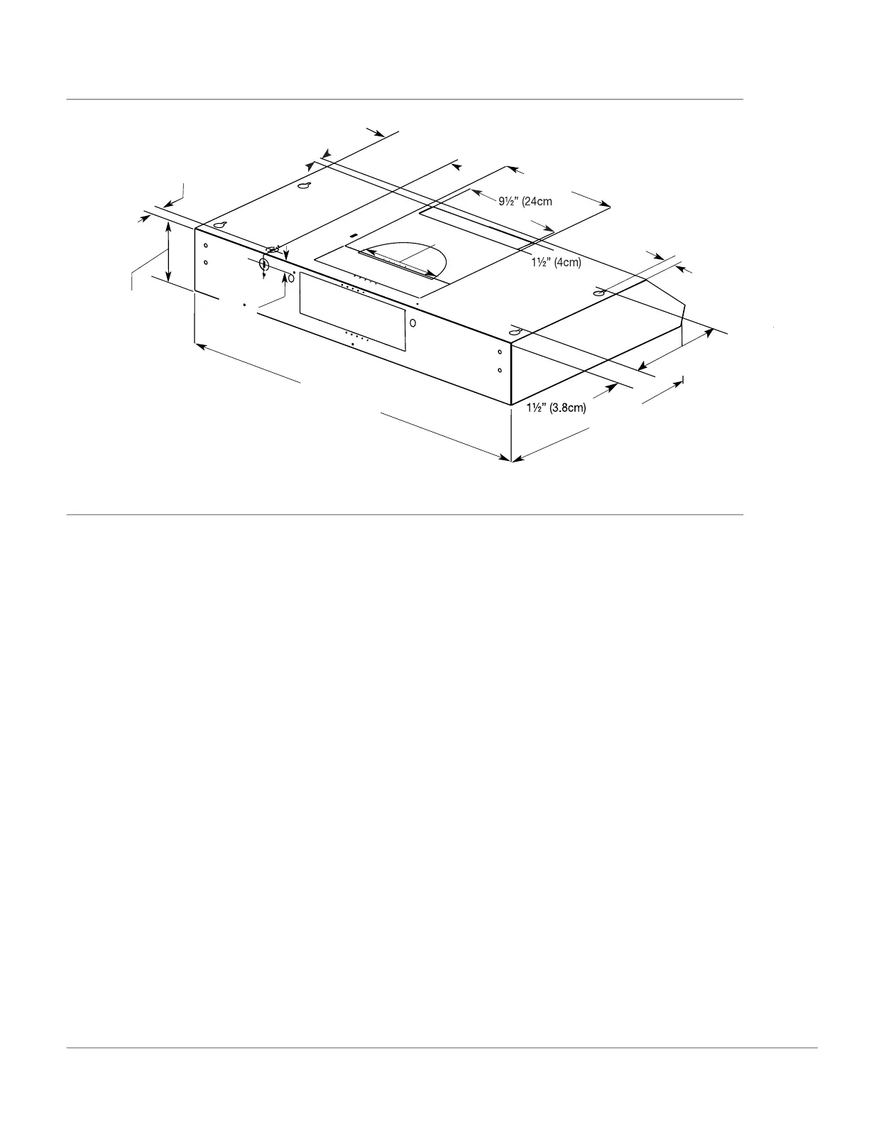
PRODUCT DIMENSIONS
10” (25.4cm
)
1” (2.5cm)
typical both sides
9” (22.9cm)
typical both sides
19
3
/
4
”
(50.2cm)
7
/
8
”
(2.2cm)
7
/
8
”
(2.2cm)
4
15
/
16
”
(12.5cm)
typical both sides
recirculating cover
7” (17.8cm
)
recirculating cover
9
/
16
”
(1.4cm)
30”
(76.2 cm)
6
9
/
16
”
(16.7 cm)
VENTING REQUIREMENTS
• Vent system must terminate to the outdoors.
• Do not terminate the vent system into an attic
or other enclosed area.
• Do not use a 4” (10.2 cm) laundry-type wall
cap.
• Use a 7” (17.8 cm) round metal vent. Rigid metal
vent is recommended.
• Plastic or metal foil vent is not recommended.
• The length of vent system and number of
elbows should be kept to a minimum to provide
ecient performance.
For the most ecient and quiet operation:
• Use no more than three 90° elbows.
• Make sure there is a minimum of 24” (61 cm) of
straight vent between the elbows if more than 1
elbow is used.
• Do not install 2 elbows together.
• Use clamps or duct tape to seal all joints in the
vent system.
• The vent system at exit must have a cold air
damper.
• Use caulking to seal exterior wall or roof
opening around the cap.
• Best performances are reached with straight
piping, without elbows and using smooth pipe.
• Recommended equivalent calculated length
vent system : round 50 ft (15.2m).
Cold Weather Installations
An additional back draft damper should be
installed to minimize backward cold air flow and
a thermal break should be installed to minimize
conduction of outside temperatures as part of the
vent system. The damper should be on the cold air
side of the thermal break.
The break should be as close as possible to where
the vent system enters the heated portion of the
house.
Makeup Air
Local building codes may require the use of
makeup air systems when using ventilation systems
greater than specified CFM of air movement. The
specified CFM varies from locale to locale. Consult
your HVAC professional for specific requirements in
your area.
Bekijk gratis de handleiding van Frigidaire FCVW3052WH, stel vragen en lees de antwoorden op veelvoorkomende problemen, of gebruik onze assistent om sneller informatie in de handleiding te vinden of uitleg te krijgen over specifieke functies.
Productinformatie
| Merk | Frigidaire |
| Model | FCVW3052WH |
| Categorie | Afzuigkap |
| Taal | Nederlands |
| Grootte | 6775 MB |







