Frigidaire FCVW3052WH handleiding
Handleiding
Je bekijkt pagina 47 van 56

47
PREPARE EL MONTAJE
NOTA
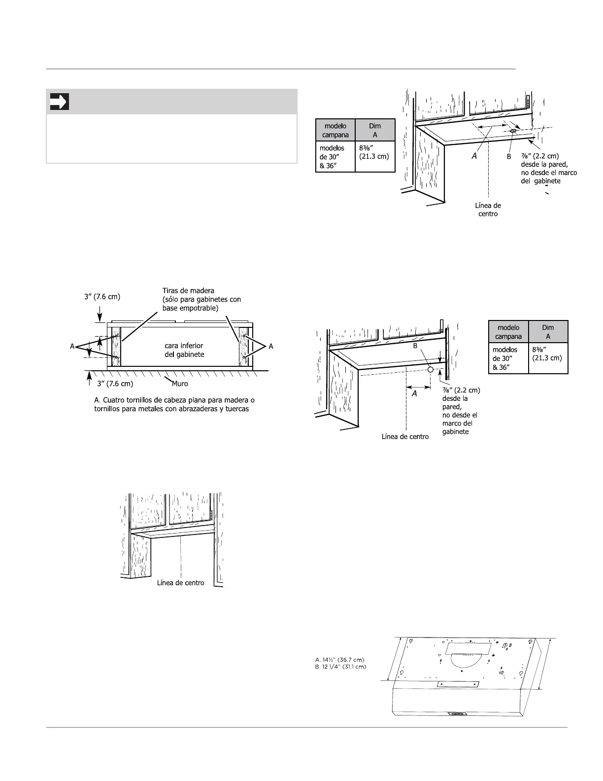
Antes de hacer los recortes, asegúrese que
haya suficiente espacio libre dentro del
techo o la pared para el ducto de escape.
1. Desconecte el suministro de energía.
2. Seleccione una superficie plana para ensamblar
su campana y cubra dicha superficie.
3. Levante la campana y colóquela sobre la
superficie.
4. Si el gabinete tiene una base empotrada,
coloque tiras de madera en cada lado. Fíjelo
con tornillos para asegurar
Determine la ubicación del orificio de cableado
1. Determine y marque claramente una línea
vertical de centro sobre la pared y el
armario en el área que se hará la abertura de
ventilación.
Para hacer el cableado a través de la parte
superior:
1. Trace una línea (A) desde la parte derecha
de la línea central sobre la parte inferior del
armario. Marque el punto sobre esa línea que
esté a ⅞” (2.2 cm) desde la pared posterior.
Taladre un orificio de 1¼” (3.2 cm) de diámetro
(B) a través del armario en este punto.
Para hacer el cableado a través de la pared:
1. Trace una línea (A) desde la parte derecha
de la línea central sobre la parte inferior de la
pared. Marque el punto sobre esta línea que
esté a ⅞” (2.2 cm) desde la parte inferior del
armario.
Taladre un orificio de 1¼” (3.2 cm) de diámetro
a través de la pared posterior en este punto.
SALIDA DE AIRE
Escoja la salida de aire que desee de las opciones
listadas a continuación:
Estilo 1 - Versión recirculante de la campana
Para esta instalación, vaya a la sección “Instale la
campana (versión recirculante)”
NOTA: Para las instalaciones que ventilan hacia
el techo o la pared, la cubierta de ventilación de
recirculación debe permanecer en su lugar.
NOTA: Considere utilizar la medida A para la
transición redonda de 17,8 cm (7”) y la medida B
para el sistema de recirculación en las dimensiones
de su armario.
A.
B.
Bekijk gratis de handleiding van Frigidaire FCVW3052WH, stel vragen en lees de antwoorden op veelvoorkomende problemen, of gebruik onze assistent om sneller informatie in de handleiding te vinden of uitleg te krijgen over specifieke functies.
Productinformatie
| Merk | Frigidaire |
| Model | FCVW3052WH |
| Categorie | Afzuigkap |
| Taal | Nederlands |
| Grootte | 6775 MB |







