Frigidaire FCVW3052WH handleiding
Handleiding
Je bekijkt pagina 11 van 56

11
PREPARE THE LOCATION
NOTE
Before making cutouts, make sure there
is proper clearance within the ceiling or
wall.
1. Disconnect power.
2. Select a flat surface for assembling the range
hood. Place covering over that surface.
3. Lift the range hood and set it upside down
onto covered surface.
4. If cabinet has recessed bottom, add wood filler
strips on each side. Install screws to attach
filler strips in locations shown.
Wood filler strips
(recessed cabinet
bottoms only)
Wall
Cabinet
bottom
3Ó (7.6 cm)
3Ó (7.6 cm)
A. 4 flat head wood screws with
washers and nuts
AA
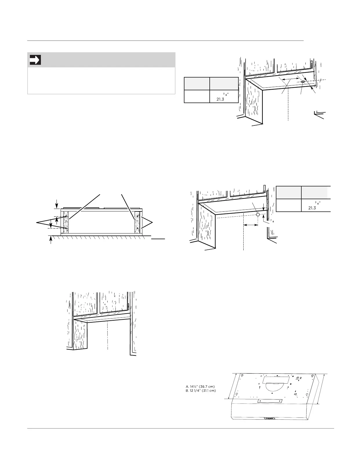
Determine Wiring Hole Location
1. Determine and clearly mark a vertical
centerline on the wall and cabinet bottom.
Centerline
To wire through top:
2. Mark a line distance (A) from the right of the
centerline on the underside of the cabinet.
Mark the point on this line that is 2” (5.08 cm)
from back wall. Drill a 1¼” (3.2 cm) diameter
hole (B) through the cabinet at this point.
Hood
model
Dim A
30” & 36”
8
/
( cm)
A
Centerline
B
2” (5.08 cm)
from wall, not
cabinet frame
To wire through wall:
1. Mark a line distance (A) from the right of the
centerline on the underside of the wall. Mark
the point on this line that is
7
⁄” (2.2 cm) from
the underside of the cabinet. Drill a 1¼” (3.2
cm) diameter hole (B) through the rear wall at
this point.
A
Centerline
B
Hood
model
Dim A
30” & 36”
8
/
( cm)
/ ”
(2.2 cm)
VENTING
Choose venting exhaust discharge from the
options listed that follows:
Style 1 - Recirculating Hood version
For this installation, go to “Install Range Hood
(recirculating version)” on page 15.
NOTE: For installations which are venting out the
roof or wall, the recirculating vent cover must
remain in place.
NOTE: Consider use the A measure for 7”(17.8 cm)
round transition and B measure for recirculating
system on your cabinet dimensions.
A.
B.
Bekijk gratis de handleiding van Frigidaire FCVW3052WH, stel vragen en lees de antwoorden op veelvoorkomende problemen, of gebruik onze assistent om sneller informatie in de handleiding te vinden of uitleg te krijgen over specifieke functies.
Productinformatie
| Merk | Frigidaire |
| Model | FCVW3052WH |
| Categorie | Afzuigkap |
| Taal | Nederlands |
| Grootte | 6775 MB |







