Handleiding
Je bekijkt pagina 83 van 90

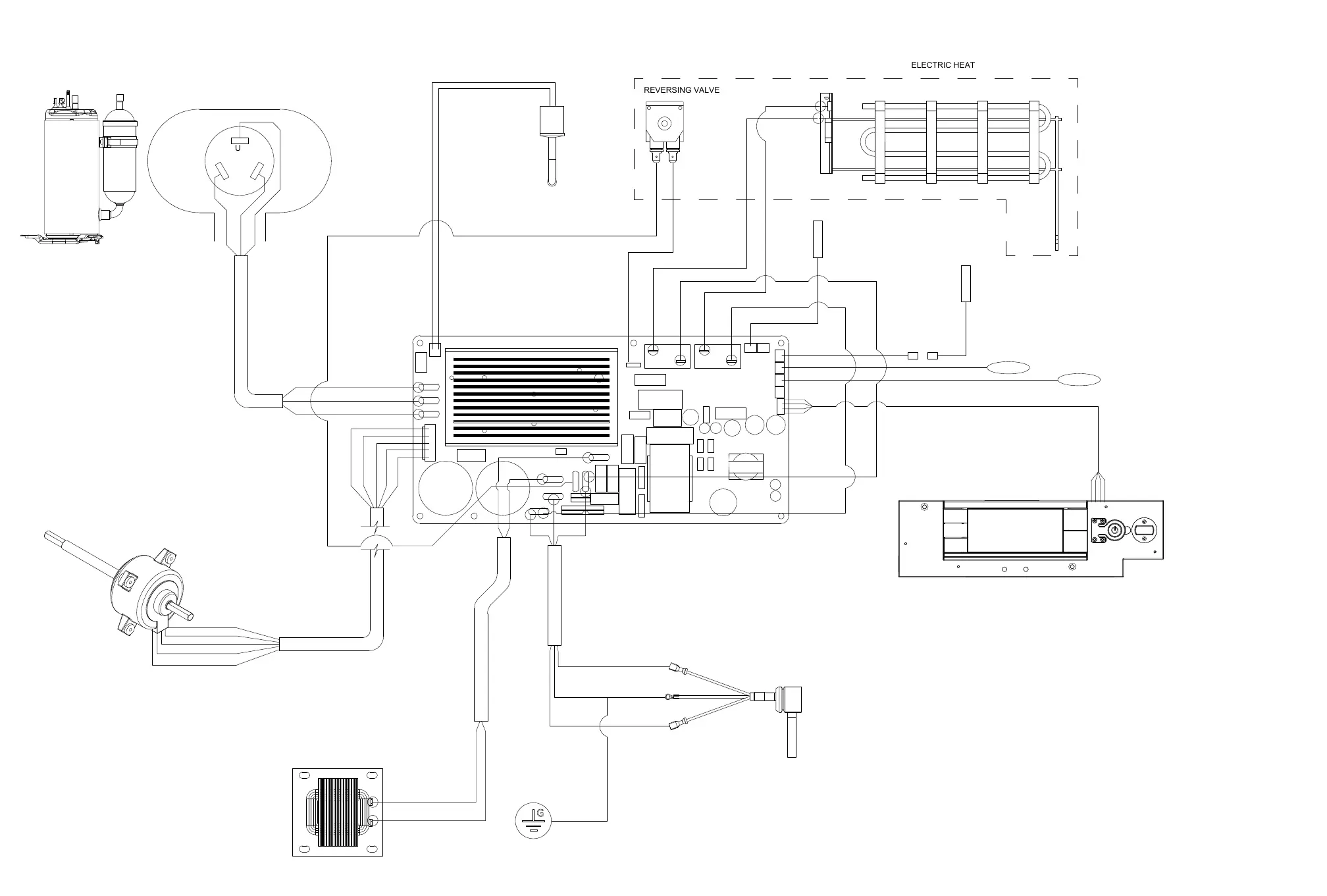
WIRING DIAGRAMS
Figure 902
KHVS10B11A
KHVS12B33A
WHVT14B33A
KHVQ10B11A
U
W
V
EH2
RELAY
EHL2
BLU
YEL
RED
U
W
V
BLU
YEL
WHT
BLK
RED
BLU
YEL
WHT
BLK
RED
WHT
BLK
GREEN
L2/N
L1/L
RE-400
RE-401
BLK
LCDI
UI
RV1
EHL1
EH1
RELAY
RV1
RELAY
BLU
BLU
BLU
BLU
RV2
RED
RED
ORG
ORG
RE-400
RE-401
RV2
L2/N
GND
L1/L
RED
ORG
DISCH TEMP SENSOR
AMB TEMP SENSOR
ID COIL
TEMP SENSOR
OD COIL
TEMP SENSOR
BLK
INDUCTOR / REACTOR
HPS
GND
ELECTRIC HEAT
REVERSING VALVE
Bekijk gratis de handleiding van Friedrich WallMaster WCVT12B30A, stel vragen en lees de antwoorden op veelvoorkomende problemen, of gebruik onze assistent om sneller informatie in de handleiding te vinden of uitleg te krijgen over specifieke functies.
Productinformatie
| Merk | Friedrich |
| Model | WallMaster WCVT12B30A |
| Categorie | Airco |
| Taal | Nederlands |
| Grootte | 17785 MB |







