Handleiding
Je bekijkt pagina 4 van 44

4
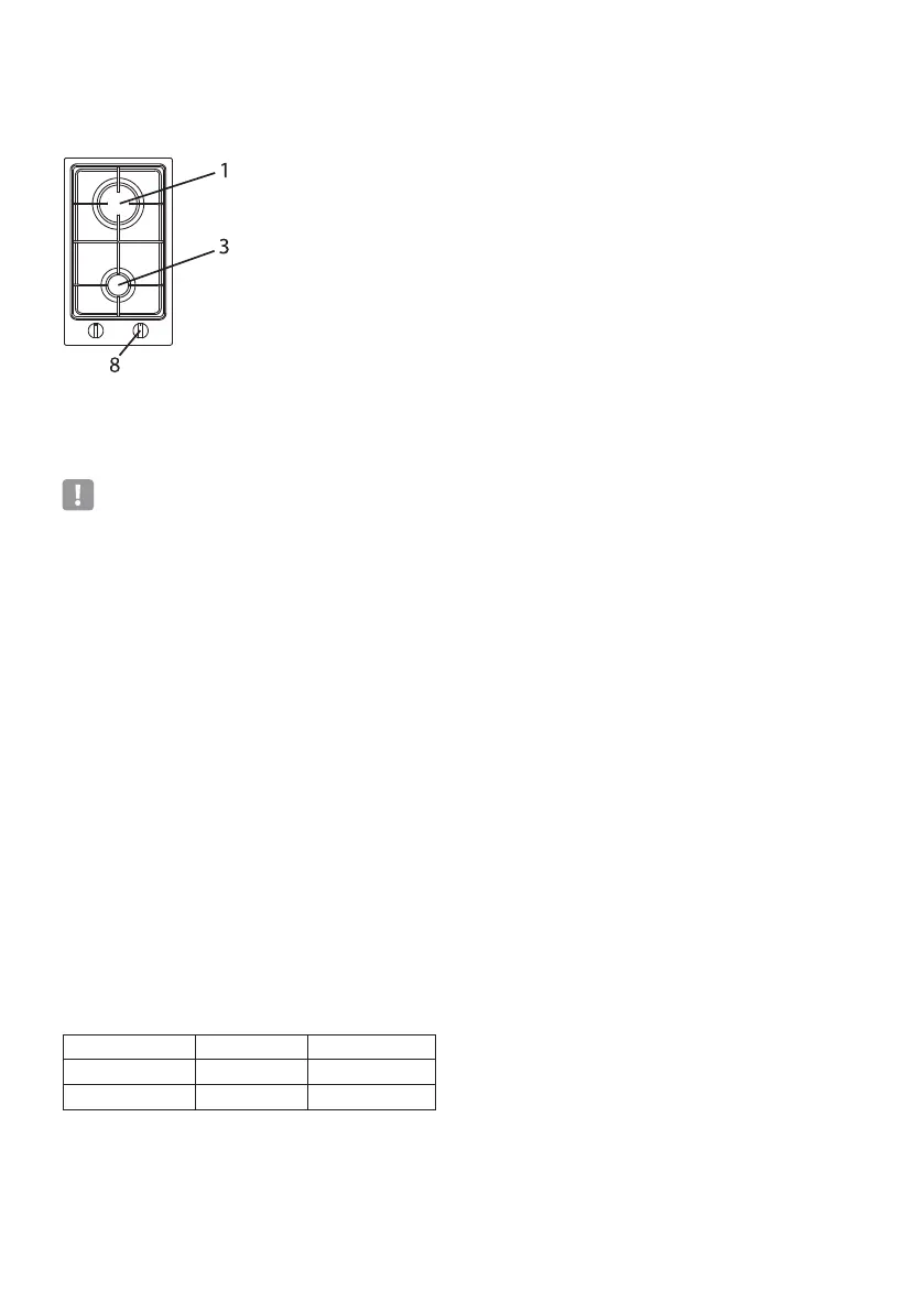
DESCRIZIONE PIANI DI COTTURA
1 Bruciatore Rapido 3000 W
3 Bruciatore Ausiliario 1000 W
8 Manopola comando bruciatore
ISTRUZIONI PER L’UTENTE
È necessario che tutte le operazioni relative all’installazione, alla regolazione, all’adattamento al tipo
gas disponibile, vengano eseguite da personale quali cato, secondo le norme in vigore. Le istruzioni
speci che sono descritte nella parte del libretto riservate all’installatore.
USO DEI BRUCIATORI
La simbologia serigrafata a lato delle manopole, indica la corrispondenza tra manopola e bruciatore.
• ACCENSIONE MANUALE
Premere la manopola e ruotarla in senso antiorario no alla posizione di massimo, avvicinare al bruciatore una amma
o un accenditore.
• ACCENSIONE ELETTRICA
Premere la manopola e ruotarla in senso antiorario no alla posizione di massimo, premere il pulsante accensione sul
pannello comandi.
In tutti i modelli dotati di valvola di sicurezza, la manopola dovrà essere premuta per almeno 6 secondi dopo
l’avvenuta accensione della amma.
• USO DEI BRUCIATORI
Per ottenere il massimo della resa senza spreco di gas è importante che il diametro della pentola sia adeguato alla
potenzialità del bruciatore (vedi tabella seguente), in modo da evitare che la amma esca dal fondo della pentola ( g.1).
Utilizzare la portata massima per portare rapidamente in ebollizione i liquidi e quella ridotta per riscaldare le vivande
o per il mantenimento dell’ebollizione. Tutte le posizioni di funzionamento devono essere scelte tra quelle di massimo
e quella di minimo, mai tra la posizione di massimo e il punto di chiusura.
Per interrompere l’alimentazione gas, ruotare la manopola in senso orario sulla posizione di spento.
• AVVERTENZE
• Controllare sempre che le manopole siano nella posizione di chiuso quando l’apparecchiatura non è in
funzione.
• Durante la cottura con grassi o olii, porre la massima attenzione in quanto gli stessi, surriscaldandosi,
possono in ammarsi.
DESCRIZIONE PIANI DI COTTURA
Bruciatori potenze (W) Ø pentole
Ausiliario 1000 10 - 14 cm
Rapido 3000 20 - 22 cm
(EE
gas hob
= 53.8 %)
Bekijk gratis de handleiding van Freggia HB320B, stel vragen en lees de antwoorden op veelvoorkomende problemen, of gebruik onze assistent om sneller informatie in de handleiding te vinden of uitleg te krijgen over specifieke functies.
Productinformatie
| Merk | Freggia |
| Model | HB320B |
| Categorie | Fornuis |
| Taal | Nederlands |
| Grootte | 4472 MB |







