Handleiding
Je bekijkt pagina 26 van 36

- 12 - - 13 -
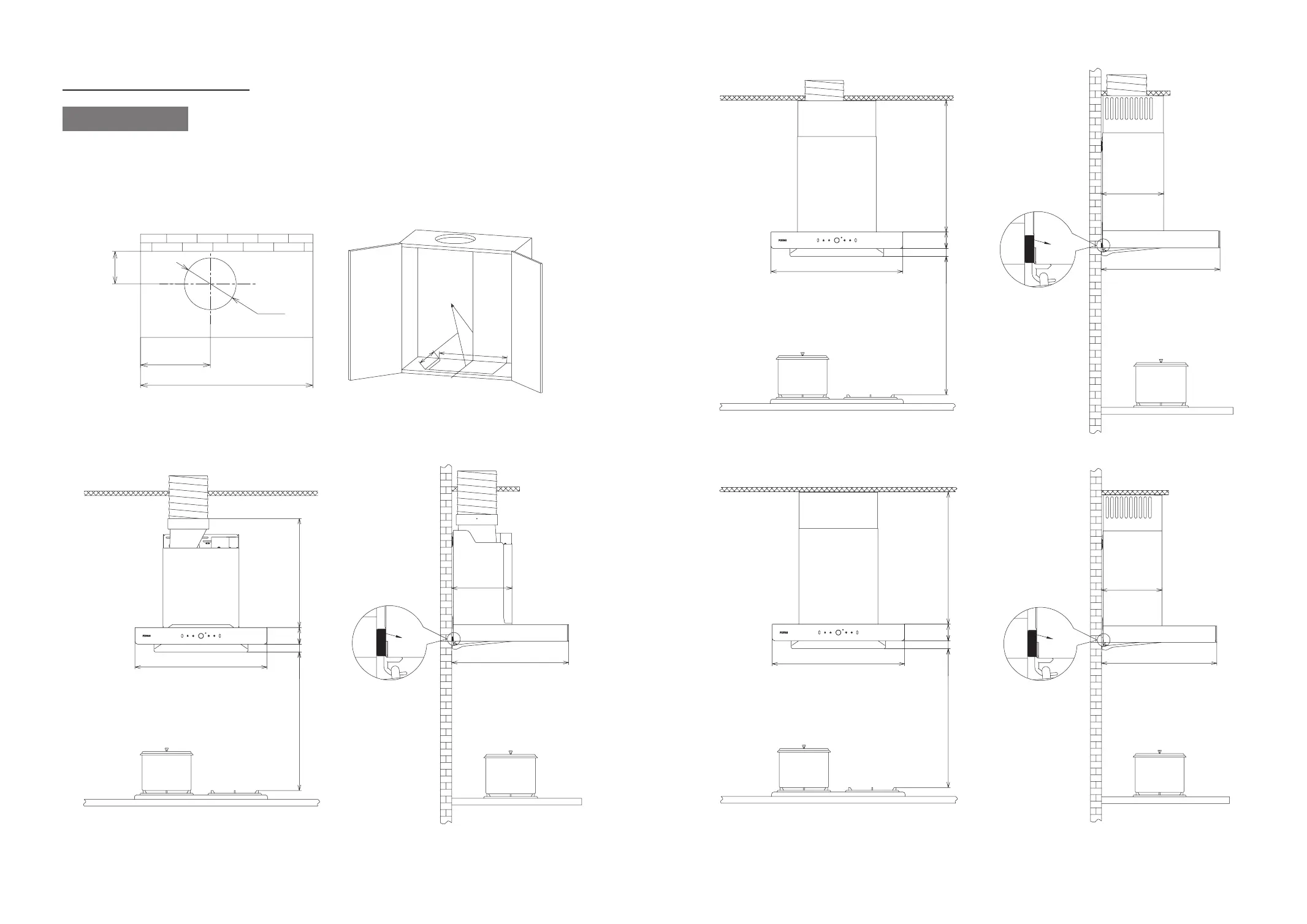
Installation
Assembly Height
The marked dimensions are for reference only (unit: mm)
Installation diagram of Exhaust Type Range Hood
360
280
600
243
113
Φ
180
The center
line
The hole size of the ceiling or cupboard top plate The hole size of the cabinet bottom plate
★ 271
★ 522
Cushion
36
75
491
595
EMS6008 Installation diagram (
★
indicating the distance to the wall)
36
75
505~830
595
★ 275
★ 522
Cushion
EMS6008-C Installation diagram (
★
indicating the distance to the wall)
★ 275
★ 522
36
75
595
Cushion
Installation diagram of Inner Circulating Type Range Hood
(
★
indicating the distance to the wall)
700~830
650~700
650~700650~700
Bekijk gratis de handleiding van Fotile EMS6018, stel vragen en lees de antwoorden op veelvoorkomende problemen, of gebruik onze assistent om sneller informatie in de handleiding te vinden of uitleg te krijgen over specifieke functies.
Productinformatie
| Merk | Fotile |
| Model | EMS6018 |
| Categorie | Afzuigkap |
| Taal | Nederlands |
| Grootte | 7497 MB |


