Handleiding
Bekijk gratis de handleiding van Fotile EMG6018, stel vragen en lees de antwoorden op veelvoorkomende problemen, of gebruik onze assistent om sneller informatie in de handleiding te vinden of uitleg te krijgen over specifieke functies.
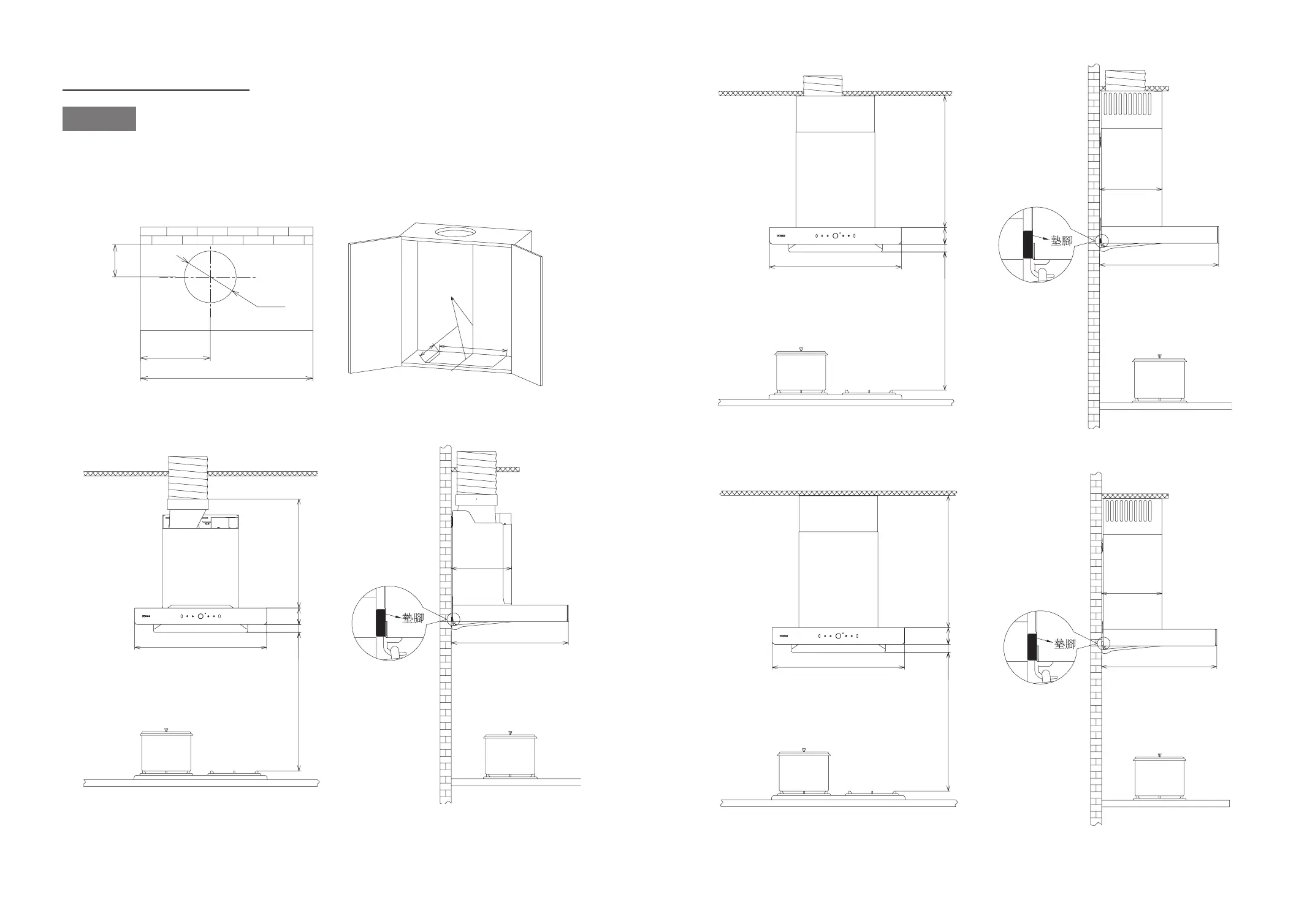
Productinformatie
| Merk | Fotile |
| Model | EMG6018 |
| Categorie | Afzuigkap |
| Taal | Nederlands |
| Grootte | 7497 MB |



