Fisher Paykel DRH-48N handleiding
Handleiding
Je bekijkt pagina 9 van 44

7
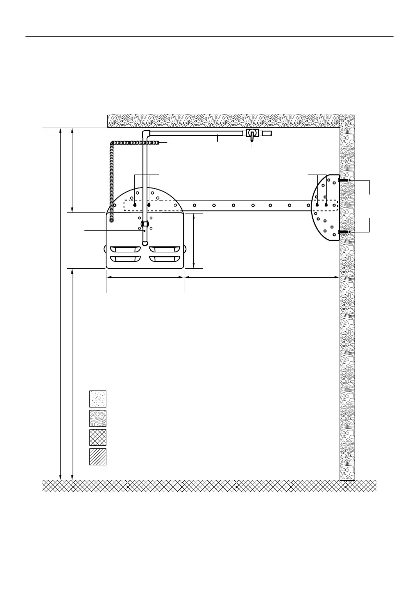
CLEARANCE SPECIFICATIONS
0° Installation
Minimum clearances to combustible material:
PROFILE
10 1/4"
7 3/4"
min 96"
min 120"
min 16"
min 21"
1/2"
conduit*
gas
pipe*
drip leg
with
1/8" NPT
plugged
test gage
connection
utilize 2 bolts
(min) per bracket
utilize 2 bolts
(min) per bracket
gas
shut-off
valve*
*Installer supplied.
4 bolts*
(two on
each side)
Non-combustible surface* (required)
Combustible Surface
Flooring
Non-combustible surface*
or combustible surface
Bekijk gratis de handleiding van Fisher Paykel DRH-48N, stel vragen en lees de antwoorden op veelvoorkomende problemen, of gebruik onze assistent om sneller informatie in de handleiding te vinden of uitleg te krijgen over specifieke functies.
Productinformatie
| Merk | Fisher Paykel |
| Model | DRH-48N |
| Categorie | Niet gecategoriseerd |
| Taal | Nederlands |
| Grootte | 2923 MB |







