Fisher Paykel DRH-48N handleiding
Handleiding
Je bekijkt pagina 43 van 44

18
DCSAPPLIANCES.COM
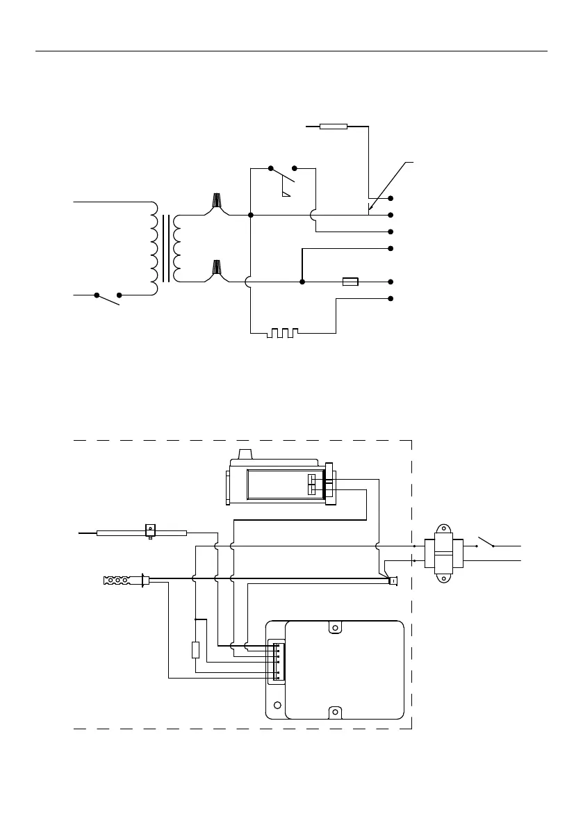
SCHÉMA DE CÂBLAGE
Schéma de câblage
Schéma de câblage/des composants
Détecteur
de flamme
Robinet
de gaz
2
1
Mini-
allumeur
Patte
de terre
Module
d'allumage
1
2
3
4
5
6
7
Fusible
24 V c.a.
Transformateur
Neutre
Ligne 1
Commutateur
1. Violet – détecteur de flamme
2. Vert – terre
3. Bleu – robinet de gaz (term n° 1)
4. Orange - thermostat
5. (vierge)
6. Noir - 24 V c.a.
7. Rouge – allumeur
Court-circuit pour éviter
détecteur de flamme
Détecteur
de flamme
Robinet
de gaz
Allumeur
24 V C.A.
120 V c.a.
60 Hz
Neutre
Ligne 1
Fusible
10 A – 32 volts
#2 #1
Bekijk gratis de handleiding van Fisher Paykel DRH-48N, stel vragen en lees de antwoorden op veelvoorkomende problemen, of gebruik onze assistent om sneller informatie in de handleiding te vinden of uitleg te krijgen over specifieke functies.
Productinformatie
| Merk | Fisher Paykel |
| Model | DRH-48N |
| Categorie | Niet gecategoriseerd |
| Taal | Nederlands |
| Grootte | 2923 MB |







