Fisher Paykel DRH-48N handleiding
Handleiding
Je bekijkt pagina 35 van 44

10
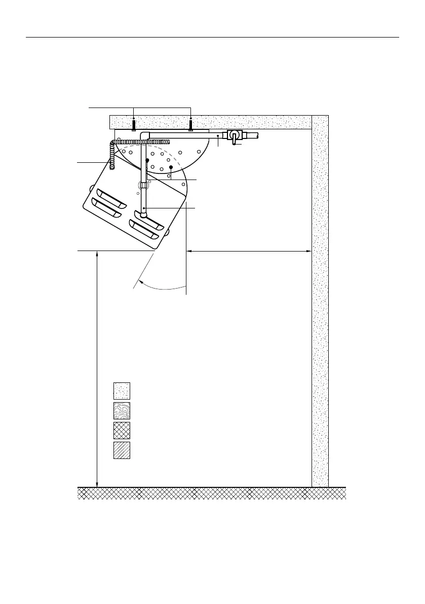
SPÉCIFICATION CONCERNANT LES DÉGAGEMENTS
Installation à 45°
Dégagements minimum par rapport à des matériaux non combustibles :
96" min.
18" min.
Tube
1,3 cm
(1/2 po)*
Tuyau
de gaz*
Point de purge avec
connexion de manomètre
d'essai 1/8” NPT branché
Robinet d'arrêt
de l'alimentation
de gaz*
2 boulons (min.)
par support
Quatre
boulons*
par côté
*Fourni par l'installateur.
PROFIL
45° max.
Surface non combustibles
(requise)
Surface combustibles
Plancher
Surface non combustibles*
et combustibles
Bekijk gratis de handleiding van Fisher Paykel DRH-48N, stel vragen en lees de antwoorden op veelvoorkomende problemen, of gebruik onze assistent om sneller informatie in de handleiding te vinden of uitleg te krijgen over specifieke functies.
Productinformatie
| Merk | Fisher Paykel |
| Model | DRH-48N |
| Categorie | Niet gecategoriseerd |
| Taal | Nederlands |
| Grootte | 2923 MB |







