Ferroli TP3 COND 65÷1000 handleiding
Handleiding
Je bekijkt pagina 43 van 92

43
ES
TP3 COND
cod. 3541T740 - Rev 05 - 08/2022
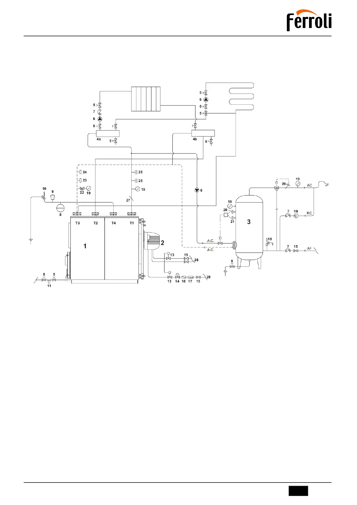
6. ESQUEMAPRELIMINAR-INSTALACIÓNPARACALEFACCIÓNYPRODUCCIÓNDEAGUASANITARIA
La selección e instalación de los componentes corresponde al instalador, que debe operar según las reglas de la buena técnica y la legi-
slación vigente. Las instalaciones cargadas con anticongelante exigen el empleo de desconectores hídricos. Se recuerda que el esquema
de fig. 19 es un esquema preliminar. En caso de instalaciones diferentes, contactar con nuestro Servicio Posventa, que suministrará todos
los elementos necesarios.
fig.19
Leyenda
T1 Ida calefacción
T2 Retorno alta temperatura
T3 Retorno baja temperatura
T4 Conexión depósito de expansión
1 Generador de calor
2 Quemador con válvulas de bloqueo y regulación
3 Calentador
4 Colectores de la instalación
5 Válvulas de seccionamiento
6 Bomba de circulación
7 Válvulas antirretorno
8 Depósito de expansión de la instalación
9 Válvula de purga automática
10 Válvula de seguridad
11 Filtro ablandador
12 Carga instalación
13 Válvula de paso del combustible
14 Estabilizador de presión del gas
15 Válvula de corte manual
16 Filtro gas
17 Junta antivibración
18 Bomba
19 Manómetro
20 Termostato de seguridad
21 Termostato de regulación
22 Grifo de tres vías
23 Presostato con restablecimiento manual
24 Flujostato
25 Termostato de regulación
26 Termostato con restablecimiento manual
27 Alojamiento sonda temperatura
28 Alimentación gasóleo
29 Alimentación gas
Bekijk gratis de handleiding van Ferroli TP3 COND 65÷1000, stel vragen en lees de antwoorden op veelvoorkomende problemen, of gebruik onze assistent om sneller informatie in de handleiding te vinden of uitleg te krijgen over specifieke functies.
Productinformatie
| Merk | Ferroli |
| Model | TP3 COND 65÷1000 |
| Categorie | Niet gecategoriseerd |
| Taal | Nederlands |
| Grootte | 14988 MB |