Handleiding
Je bekijkt pagina 11 van 30

Page 11 of 30
10. Removal of shelving is performed by following steps in reverse order.
11. The shelf standards are removable from case by removing the (2) shelf standard retaining screws holding them to the
inside wall of case.
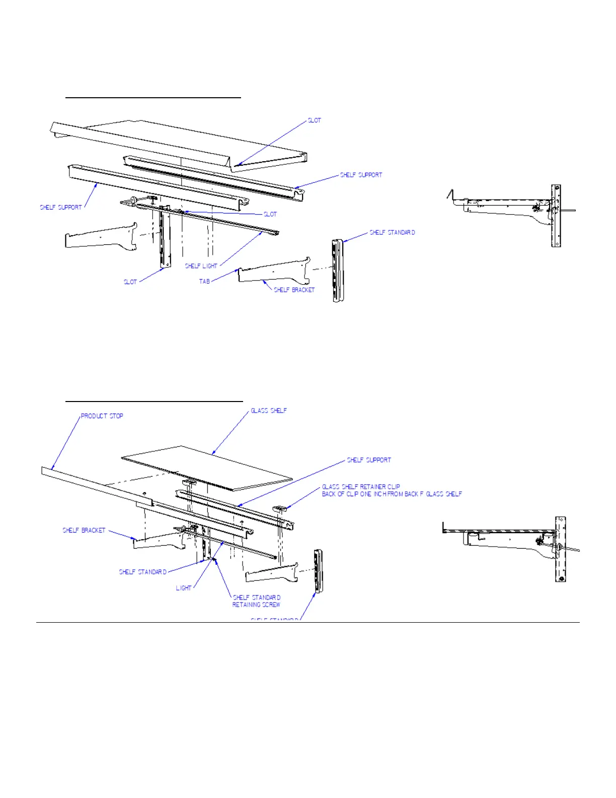
7.2 SOLID SHELF INSTALLATION
1. Install shelf brackets & shelf supports as described in Shelf Bracket & Supports Installation Section of this manual.
2. Place the front of metal shelf onto front shelf support. The tab on end of shelf bracket must go through slot in front of
shelf.
3. Place the back of shelf over the back of the rear shelf support.
7.3 GLASS SHELF INSTALLATION
1. For first time installation attach (2) glass shelf retainer clips to each glass shelf in location shown in illustration one
inch from back of glass as shown. Clean area of glass where glass shelf holder is to be located with rubbing alcohol
and let air dry before installing shelf glass holder. Remove backing from tape located on flat side of glass shelf holder.
Position the glass shelf holders in the (2) far corners of glass. Repeat for each glass shelf.
2. For first time installation attach (1) product stop to each glass shelf as shown in detail above. Align the product stop
edge with the edge of the glass and push the “U” portion of the product stop on to glass lip across the entire front of
glass.
Bekijk gratis de handleiding van Federal UCRSL7233C, stel vragen en lees de antwoorden op veelvoorkomende problemen, of gebruik onze assistent om sneller informatie in de handleiding te vinden of uitleg te krijgen over specifieke functies.
Productinformatie
Merk | Federal |
Model | UCRSL7233C |
Categorie | Koelkast |
Taal | Nederlands |
Grootte | 3848 MB |