Handleiding
Je bekijkt pagina 16 van 63

-
16
-
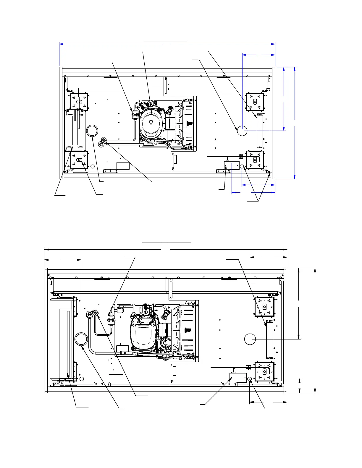
Floor ITR60 Self Contained
CONDENSING UNIT
CONDENSATE
EVAPORATOR
OR PUMP
POWER SUPPLY
ELECTRICAL
CONNECTION BOX
ACESS HOLE
2.75
O
ACESS
HOLE 2.75
O
FILTER DRIER
SIGHT GLASS
ELECTRICAL
CONNECTION .88
O
FRONT TOP VIEW
LEG LEVELER PLATES
OR CASTER POCKETS
60
30.8
9
17.5
9
12.0
Floor ITRSS60 Self Contained
POWER SUPPLY
ELECTRICAL
CONNECTION BOX
ACESS
HOLE 2.75
O
FILTER DRIER
SIGHT GLASS
ELECTRICAL
CONNECTION .88
O
FRONT TOP VIEW
9
17.5
30.8
3.4
9.3
60
CONDO PAN
9.13
Bekijk gratis de handleiding van Federal ITRSS6034, stel vragen en lees de antwoorden op veelvoorkomende problemen, of gebruik onze assistent om sneller informatie in de handleiding te vinden of uitleg te krijgen over specifieke functies.
Productinformatie
Merk | Federal |
Model | ITRSS6034 |
Categorie | Koelkast |
Taal | Nederlands |
Grootte | 10063 MB |