Handleiding
Je bekijkt pagina 17 van 63

-
17
-
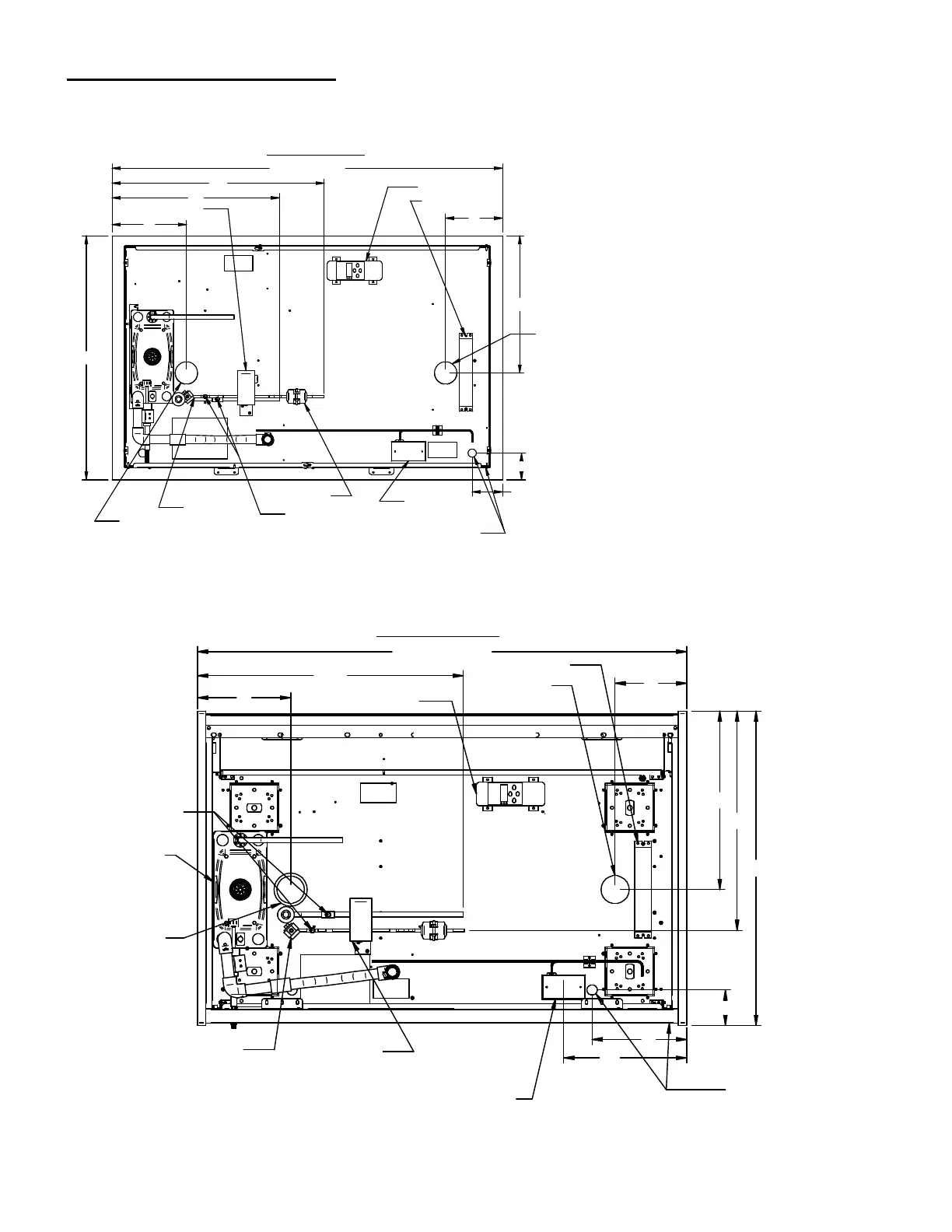
Refrigerated Remote Models
All ITR Counter Remote
POWER SUPPLY
ELECTRICAL
CONNECTION BOX
ACESS
HOLE 2.75
O
ACESS
HOLE 2.75
O
SIGHT
GLASS
ELECTRICAL
CONNECTION .88
O
17
3
3.7
9
7
4836 / /60
30
FRONT TOP VIEW
SOLENOID VALVE
ACCESS VALVES
FILTER DRIER
26
21
EEV CONTROL
All ITR Floor Remote
POWER SUPPLY
ELECTRICAL
CONNECTION BOX
ACESS HOLE
2.75
O
ACESS
HOLE 2.75
O
ELECTRICAL
CONNECTION .88
O
FRONT TOP VIEW
30.8
4836 \ \ 60
7
9
17.5
9
3.5
12
REFRIGERATION
SOLENOID
REFRIGERATION
ACCESS VALVES
SIGHT GLASS
CONDO PUMP
26.0
21.5
EEV CONTROL
Bekijk gratis de handleiding van Federal ITRSS3626, stel vragen en lees de antwoorden op veelvoorkomende problemen, of gebruik onze assistent om sneller informatie in de handleiding te vinden of uitleg te krijgen over specifieke functies.
Productinformatie
Merk | Federal |
Model | ITRSS3626 |
Categorie | Koelkast |
Taal | Nederlands |
Grootte | 10063 MB |